Valutazione immobiliare indipendente, accurata e gratuita
Casa indipendente in vendita ad Arcisate a 370.000 € (cod.64a01f3d)
Caasa non ha sufficienti informazioni per commentare la casa indipendente in vendita ad Arcisate - 64a01f3d.
Analisi immobiliare
I dati in posseso di Caasa per quest'immobile sono insufficienti, inaffidabili o contraddittori per proporre un'analisi attendibile.
Mercato immobiliare ad Arcisate
Per quanto riguarda più in generale il comune di Arcisate, sono presenti al momento più di cinquanta annunci per
case indipendenti in vendita (meno dell'1% dell'intera provincia)
e il maggior numero di annunci per questa tipologia sono relativi alla zona di Brenno Useria.
Relativamente alla dinamica dei prezzi, possiamo dire che negli ultimi 6 mesi i prezzi medi in tutto il comune per case indipendenti in vendita sono
in sostanziale aumento (+5,73%).
NOVITÀ Il risultato che vedi dipende dai dati che siamo riusciti ad estrarre dall'annuncio: ottieni una stima più accuranta di questo immobile, inserendo dati più precisi.
N.B. L'Opinione di Caasa® è un servizio sperimentale realizzato tramite tecniche di Intelligenza Artificiale, fornito senza alcuna garanzia di correttezza e completezza. Leggi il disclaimer o segnalaci un problema.
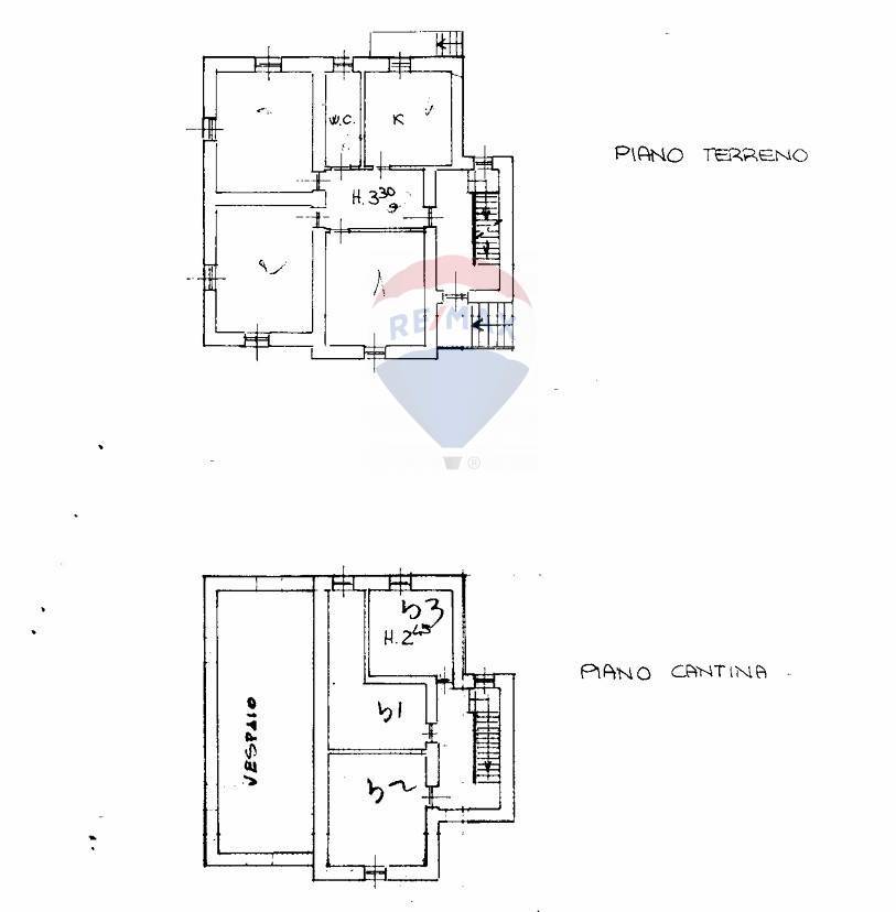
IMMAGINI
IN SINTESI
PROPOSTO DA:
REMAX Varese
DESCRIZIONE
di recente ristrutturazione con terrazza con cantina con giardino con posto auto con balcone con cucina abitabile con garage con termocondizionamento da ristrutturare di recente ristrutturazione con riscaldamento autonomo
VILLA BIFAMILIARE CON GIARDINO In una tranquilla zona residenziale di Arcisate, proponiamo in vendita una VILLA BIFAMILIARE indipendente, ideale per due famiglie o per chi cerca una casa spaziosa con ambienti comodi e ben distribuiti. La proprietà si sviluppa su due livelli abitativi ed è composta da due appartamenti distinti, ciascuno con il proprio ingresso. Ogni appartamento offre: - Ingresso accogliente - Cucina abitabile con accesso al balcone - Soggiorno luminoso - Due ampie camere da letto - Bagno finestrato La soluzione dispone anche di ampie cantine al piano seminterrato, perfette come lavanderia, taverna o zona hobby e di una soffitta al piano superiore, ideale come deposito o locale jolly. Completano la proprietà due box singoli di circa 17 mq ciascuno. All esterno, la villa è circondata da un giardino privato su quattro lati, che regala spazio, privacy e la possibilità di vivere l aria aperta in totale relax. Caratteristiche e manutenzioni: - Tetto rifatto nel 1992 - Bagno del piano rialzato completamente ristrutturato - Infissi in doppio vetro installati nel 2021 (piano rialzato) - Caldaia centralizzata sostituita circa 4 anni fa Una soluzione interessante per chi desidera tranquillità, spazio e indipendenza, a pochi minuti dai principali servizi e dal confine con la Svizzera. - SE STAI CONSIDERANDO L'ACQUISTO MA HAI BISOGNO DI VENDERE LA TUA PROPRIETA', SIAMO QUI PER AIUTARTI, TI ACCOMPAGNEREMO CON PROFESSIONALITA' E DEDIZIONE PER ASSICURARTI UNA TRANSIZIONE SENZA STRESS. - STAI VALUTANTO L'OPZIONE DI ACCEDERE A UN MUTUO PER L'ACQUISTO, TI CONSIGLIAMO DI APPROFITTARE DELLA NOSTRA CONSULENZA GRATUITA PER VALUTARE LA FATTIBILITA' DI OTTINIMENTO DEL FINANZIAMENTO. NON ESITARE A CONTATTARCI PER AVERE MAGGIORI INFORMAZIONI






