Valutazione immobiliare indipendente, accurata e gratuita
L'Opinione di Caasa® per l'appartamento in vendita a Sondalo a 240.000 € (cod.6565929d)
Secondo Caasa, per l'appartamento in vendita a Sondalo, la richiesta di 240.000 € è leggermente svantaggiosa rispetto agli annunci simili.
Analisi immobiliare
L'appartamento, situato nella zona OMI D1, è proposto in vendita a
240.000 € per una
superficie commerciale di
119 m² e quindi ad un prezzo per metro quadrato pari a
2016 €/m²
.
Tale prezzo
è leggermente meno conveniente di quello stimato da Caasa per immobili in vendita simili per tipologia, caratteristiche, classe energetica e localizzati nella stessa zona OMI, che è compreso tra
1.814 €/m² e
1.962 €/m².
La conoscenza con buona approssimazione della localizzazione dell'immobile ha consentito di utilizzare come raffronto i dati medi elaborati esattamente nella zona OMI di appertenenza (VIA BOLLADORE, VIA CARLO PORTA, VIA PARINI GIUSEPPE, VIA GIOVANNI BERTACCHI (...). Inoltre, Caasa ha potuto affinare la stima anche con la conoscenza della classe energetica (A+) oltre che dello stato dell'immobile (di nuova costruzione) e di alcune caratteristiche significative come il garage o la disponibilità di una cantina. In virtù di queste considerazioni i valori accettabili per l'offerta costituiscono un intervallo abbastanza limitato.
Mercato immobiliare a Sondalo
Per quanto riguarda più in generale il comune di Sondalo, sono presenti al momento più di trenta annunci per
appartamenti in vendita (meno del 5% dell'intera provincia) .
Relativamente alla dinamica dei prezzi, possiamo dire che negli ultimi 6 mesi i prezzi medi in tutto il comune per appartamenti in vendita sono
in debole diminuzione (-2,17%).
NOVITÀ Il risultato che vedi dipende dai dati che siamo riusciti ad estrarre dall'annuncio: ottieni una stima più accuranta di questo immobile, inserendo dati più precisi.
N.B. L'Opinione di Caasa® è un servizio sperimentale realizzato tramite tecniche di Intelligenza Artificiale, fornito senza alcuna garanzia di correttezza e completezza. Leggi il disclaimer o segnalaci un problema.
IMMAGINI
IN SINTESI
DESCRIZIONE
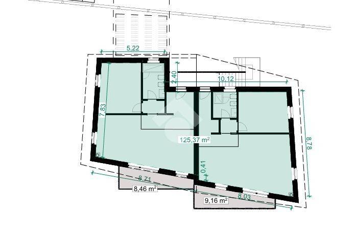
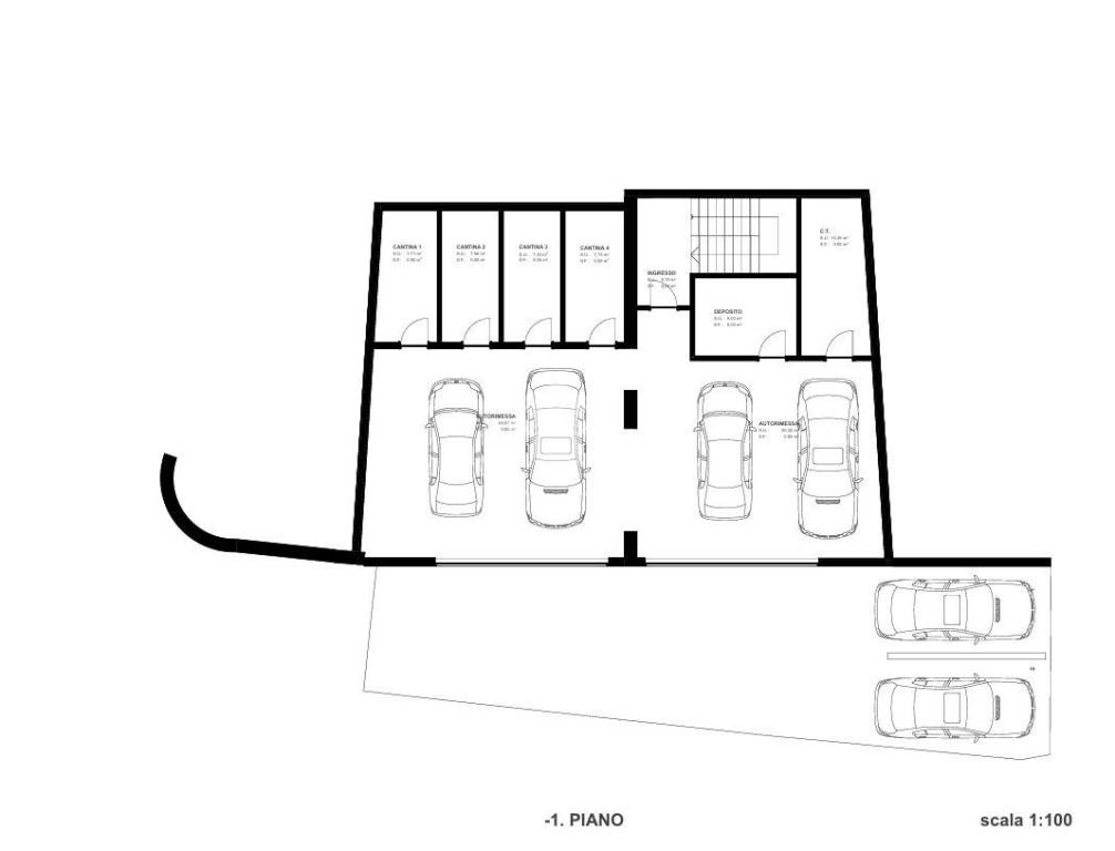
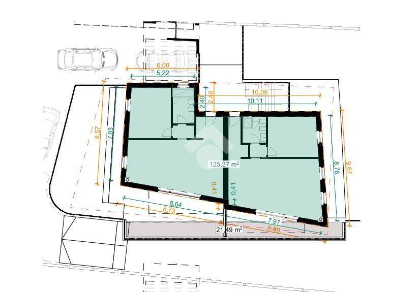
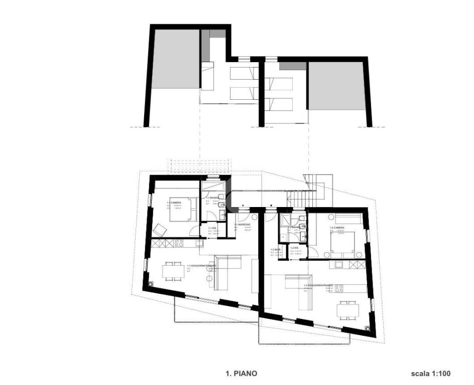
di nuova costruzione con posto auto con terrazza con cantina con garage di nuova costruzione
VIA ADDA - SONDALO Il complesso residenziale sorgerà in via Adda, in una posizione ben soleggiata e vicina a tutti i servizi, a pochi passi dal centro di Sondalo e a 15 minuti da Bormio e Tirano. Questa nuova costruzione ospiterà 4 unità abitative, di cui due trilocali e due bilocali, ciascuna dotata di autorimessa singola, posto auto esterno e cantina e tutti con accesso indipendente. Una soluzione perfetta per chi cerca un immobile moderno con tutti i comfort contemporanei, caratterizzato da un design moderno e realizzato con elevati standard qualitativi. Dal punto di vista energetico, tutti gli immobili vanteranno Classe A4, garantendo così un elevato comfort abitativo ed un significativo risparmio sui consumi. Gli appartamenti verranno consegnati finiti e chiavi in mano, secondo le specifiche del capitolato di vendita che potranno essere scelte direttamente dall'acquirente. Le soluzioni possono subire modifiche in corso d'opera a seconda delle esigenze dell'acquirente. La consegna prevista è per la primavera del 2027. PER MAGGIORI INFORMAZIONI SULLE TIPOLOGIE DISPONIBILI CONTATTATECI


