Valutazione immobiliare indipendente, accurata e gratuita
Casa indipendente in vendita a Livigno in zona Trepalle a 750.000 € (cod.651ede6e)
Caasa non ha sufficienti informazioni per commentare la casa indipendente a Livigno in zona Trepalle - 651ede6e.
Analisi immobiliare
I dati in posseso di Caasa per quest'immobile sono insufficienti, inaffidabili o contraddittori per proporre un'analisi attendibile.
Mercato immobiliare a Livigno
Per quanto riguarda più in generale il comune di Livigno, sono presenti al momento meno di dieci annunci per
case indipendenti in vendita (meno dell'1% dell'intera provincia) .
Vedi altre informazioni direttamente su
Mercato-Immobiliare.info
NOVITÀ Il risultato che vedi dipende dai dati che siamo riusciti ad estrarre dall'annuncio: ottieni una stima più accuranta di questo immobile, inserendo dati più precisi.
N.B. L'Opinione di Caasa® è un servizio sperimentale realizzato tramite tecniche di Intelligenza Artificiale, fornito senza alcuna garanzia di correttezza e completezza. Leggi il disclaimer o segnalaci un problema.
IMMAGINI
IN SINTESI
PROPOSTO DA:
Bertolatti Re - real estate
DESCRIZIONE
di nuova costruzione con posto auto di nuova costruzione con giardino con garage
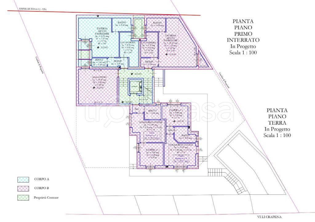
Proponiamo in vendita una casa singola di due unità previste, in corso di edificazione, situata a Trepalle, con una vista mozzafiato sulla Val Pila e sulla Valle del Passo Foscagno. L’edificio, come detto, è attualmente in fase di edificazione e sono […]
