Valutazione immobiliare indipendente, accurata e gratuita
Casa indipendente in vendita a Dubino in zona Nuova Olonio a 440.000 € (cod.63eb61d4)
Caasa non ha sufficienti informazioni per commentare la casa indipendente a Dubino in zona Nuova Olonio - 63eb61d4.
Analisi immobiliare
I dati in posseso di Caasa per quest'immobile sono insufficienti, inaffidabili o contraddittori per proporre un'analisi attendibile.
Mercato immobiliare a Dubino
Per quanto riguarda più in generale il comune di Dubino, sono presenti al momento più di cinquanta annunci per
case indipendenti in vendita (meno del 5% dell'intera provincia)
e il maggior numero di annunci per questa tipologia sono relativi proprio alla zona di Nuova Olonio.
Per quanto riguarda la richiesta media in zona Nuova Olonio, dove sorge la casa indipendente, essa è pari a circa
1.585 €/m² per case indipendenti in vendita.
Per quanto riguarda la dinamica dei prezzi, negli ultimi 6 mesi i prezzi medi in tutto il comune per case indipendenti in vendita sono
in sostanziale aumento (+6,36%).
NOVITÀ Il risultato che vedi dipende dai dati che siamo riusciti ad estrarre dall'annuncio: ottieni una stima più accuranta di questo immobile, inserendo dati più precisi.
N.B. L'Opinione di Caasa® è un servizio sperimentale realizzato tramite tecniche di Intelligenza Artificiale, fornito senza alcuna garanzia di correttezza e completezza. Leggi il disclaimer o segnalaci un problema.
IMMAGINI
IN SINTESI
PROPOSTO DA:
EDILIZIA COLOMBINI SRL
DESCRIZIONE
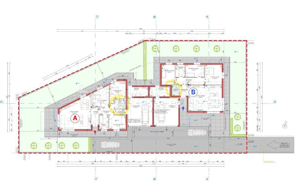
di nuova costruzione con posto auto con giardino con cantina con garage di nuova costruzione
NUOVA VILLETTA INDIPENDENTE - UNITA’ ABITATIVA A | CLASSE A3 | NUOVA OLONIO (SO) Via Prati Rossi, Nuova Olonio (SO) – In un contesto residenziale tranquillo e ben collegato, proponiamo in vendita una moderna villetta indipendente in ideale per chi cerca comfort e sostenibilità. Caratteristiche Principali ?? Zona giorno: 43,30 m², ampio soggiorno con cucina a vista, perfetto per la vita in famiglia. ?? Camera matrimoniale: 17,10 m², spaziosa e luminosa. ?? Camera doppia: 13,20 m², ideale per figli o ospiti. ?? Camera singola: 11,60 m², perfetta come studio o cameretta. ?? Bagni: 2 (principale da 5,80 m² e secondario da 3,70 m²). ?? Accessori: Disimpegno, ripostiglio/lavanderia, autorimessa privata. ?? Esterni: Ampio giardino privato con accesso esclusivo. Perché sceglierla? ? Alta efficienza energetica (Classe A3) per un notevole risparmio sui consumi. ? Possibilità di personalizzazione delle finiture in fase di trattativa. ? Posizione strategica: a pochi minuti dal centro e dai principali servizi. ? Facile accesso alla superstrada (4 minuti) e ai collegamenti principali. Contattaci per maggiori informazioni e per prenotare una visita! COmmerciale@edliziacolombini.it +39 3341151437

