Valutazione immobiliare indipendente, accurata e gratuita
Appartamento in vendita a Castione Andevenno a 42.375 € (cod.6517adc2)
Caasa non ha sufficienti informazioni per commentare l'appartamento in vendita a Castione Andevenno - 6517adc2.
Analisi immobiliare
I dati in posseso di Caasa per quest'immobile sono insufficienti, inaffidabili o contraddittori per proporre un'analisi attendibile.
Mercato immobiliare a Castione Andevenno
Per quanto riguarda più in generale il comune di Castione Andevenno, sono presenti al momento più di trenta annunci per
appartamenti in vendita (meno del 5% dell'intera provincia) .
NOVITÀ Il risultato che vedi dipende dai dati che siamo riusciti ad estrarre dall'annuncio: ottieni una stima più accuranta di questo immobile, inserendo dati più precisi.
N.B. L'Opinione di Caasa® è un servizio sperimentale realizzato tramite tecniche di Intelligenza Artificiale, fornito senza alcuna garanzia di correttezza e completezza. Leggi il disclaimer o segnalaci un problema.
IMMAGINI
IN SINTESI
PROPOSTO DA:
Case all'Asta
DESCRIZIONE
di recente costruzione con terrazza con posto auto con garage in asta giudiziaria con balcone di recente costruzione
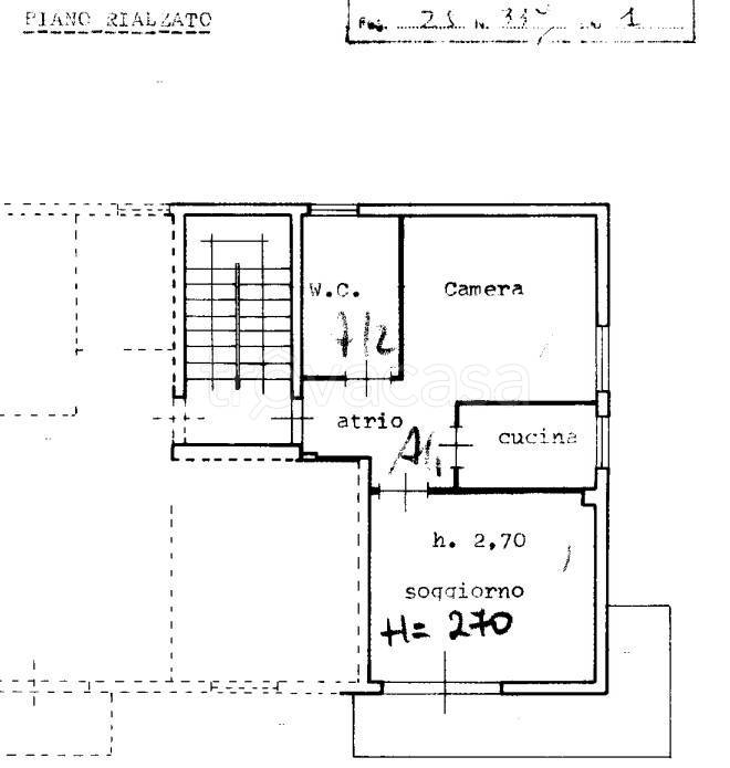
Appartamento e posto auto in autorimessa. Costituito da ingresso, soggiorno, cucina, camera e servizio con balcone su lato di sud Nessun costo di iscrizione con Case all'Asta - Acquista senza Rischi. Data di asta: 19/02/2026 Offerta minima: 42.375 € […]
