Valutazione immobiliare indipendente, accurata e gratuita
Casa indipendente in vendita a Vellezzo Bellini a 295.000 € (cod.6581c4e7)
Caasa non ha sufficienti informazioni per commentare la casa indipendente in vendita a Vellezzo Bellini - 6581c4e7.
Analisi immobiliare
I dati in posseso di Caasa per quest'immobile sono insufficienti, inaffidabili o contraddittori per proporre un'analisi attendibile.
Mercato immobiliare a Vellezzo Bellini
Per quanto riguarda più in generale il comune di Vellezzo Bellini, sono presenti al momento più di cinquanta annunci per
case indipendenti in vendita (meno dell'1% dell'intera provincia)
e il maggior numero di annunci per questa tipologia sono relativi alla zona di Giovenzano.
La dinamica dei prezzi in tutto il comune mostra che negli ultimi 6 mesi, i prezzi per case indipendenti in vendita sono
in sostanziale aumento (+7,49%).
NOVITÀ Il risultato che vedi dipende dai dati che siamo riusciti ad estrarre dall'annuncio: ottieni una stima più accuranta di questo immobile, inserendo dati più precisi.
N.B. L'Opinione di Caasa® è un servizio sperimentale realizzato tramite tecniche di Intelligenza Artificiale, fornito senza alcuna garanzia di correttezza e completezza. Leggi il disclaimer o segnalaci un problema.
IMMAGINI
IN SINTESI
PROPOSTO DA:
Gatti Silvio
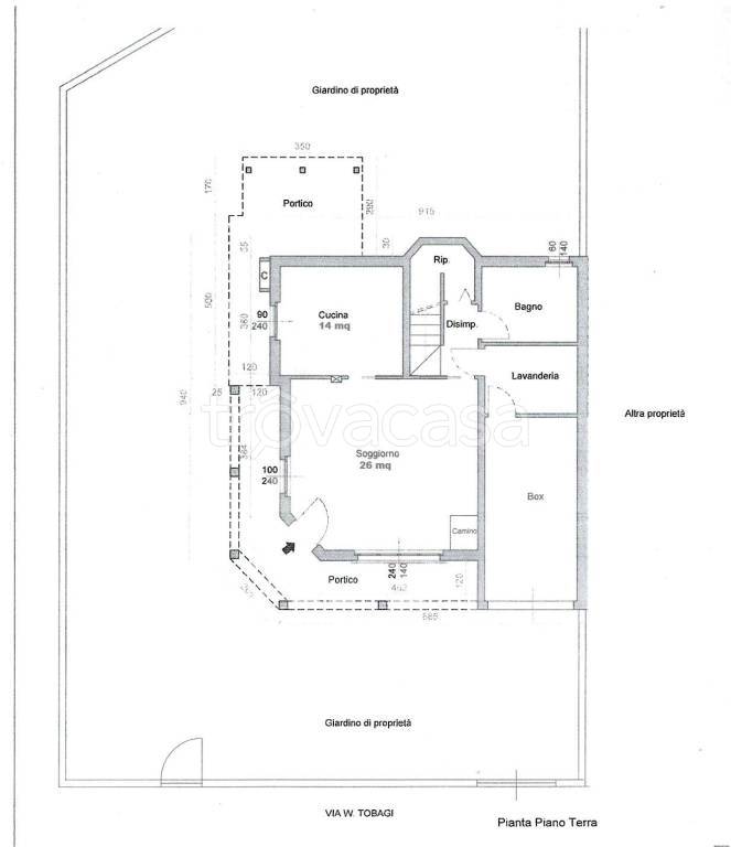
DESCRIZIONE
di recente ristrutturazione con posto auto con giardino con terrazza con cantina con balcone con cucina abitabile di recente ristrutturazione con riscaldamento autonomo con caminetto
Nelle Vicinanze nel comune di Battuda (PV) in contesto Residenziale di sole Ville, proponiamo Villa Bi-Familiare anno di Costruzione 2007 ma con Lavori di ristrutturazione Bonus110 nel 2023 Cappotto Termico e Pannelli Fotovoltaici 6kw con rete anti-Piccioni e Batteria Accumulo 8kw, Rifiniture con Mattoni a Vista e doppio zoccolino esterno, disposta su 2 piani, Ingresso Pedonale con struttura in mattoni a vista e Tettoia, Muro Perimetrale anch'esso con Mattoni a Vista, Cancello Carraio Scorrevole e pavimentazione fronte Box per Posto Auto, Box auto con Basculante color Bianco. Abitazione al P.Terra: Portico con Ingresso, Porta Blindata color Blu Petrolio, Soggiorno di 26 Mq con Pavimento in Gres Porcellanato con Mosaico, Grande Finestra ad arco e porta-Finestra per accedere al Giardino, Camino in muratura con rivestimento in Marmo con appoggio TV fornito di cassetti, Ampia Cucina Abitabile di 14mq con Porta-Finestra per accedere a Spazioso Portico e Zona Barbecue sul Retro per Pranzi all'aperto, Disimpegno, comodo Ripostiglio nel Sottoscala, Bagno con Doccia, Locale Lavanderia con attacco Lavatrice Asciugatrice e Pilozzo/Lavatoio con spazio per armadiatura e stendino. Scala per accedere al primo piano illuminata da finestra e con ringhiera in Ferro Battuto. 1°Piano: Disimpegno, Bagno con Vasca ad angolo con rivestimenti in mosaico e Termo-arredo, funzionale Ripostiglio per riporre Asciugamani e Biancheria da Letto, Camera Singola ora adibita a Studio, Camera Doppia, Ampia Camera Matrimoniale con Balcone. Giardino su 3 lati piantumato e completamente circondato da siepe perimetrale, Impianto di Illuminazione ed Impianto di Irrigazione, Varie Fontane, Pavimentazione Solarium, Porta Blindata, Riscaldamento autonomo, Aria Condizionata, Doppi Vetri, Zanzariere, Inferriate pieghevoli in Ferro Battuto su tutte le Finestre, Video-sorveglianza. Tenuta Benissimo DA VEDERE. Vendita Tramite Privato (no I.V.A del 4%) Per Info e Visite 3402704803 dal Lunedi al Sabato dalle h.9,00 alle h.12,30 e dalle 14,30 alle 19,30

