Valutazione immobiliare indipendente, accurata e gratuita
Casa indipendente in vendita a Torre d'Isola a 300.000 € (cod.659cb429)
Caasa non ha sufficienti informazioni per commentare la casa indipendente in vendita a Torre d'Isola - 659cb429.
Analisi immobiliare
I dati in posseso di Caasa per quest'immobile sono insufficienti, inaffidabili o contraddittori per proporre un'analisi attendibile.
Mercato immobiliare a Torre d'Isola
Per quanto riguarda più in generale il comune di Torre d'Isola, sono presenti al momento più di trenta annunci per
case indipendenti in vendita (meno dell'1% dell'intera provincia) .
Relativamente alla dinamica dei prezzi, possiamo dire che negli ultimi 6 mesi i prezzi medi in tutto il comune per case indipendenti in vendita sono
in forte aumento (+52,45%).
NOVITÀ Il risultato che vedi dipende dai dati che siamo riusciti ad estrarre dall'annuncio: ottieni una stima più accuranta di questo immobile, inserendo dati più precisi.
N.B. L'Opinione di Caasa® è un servizio sperimentale realizzato tramite tecniche di Intelligenza Artificiale, fornito senza alcuna garanzia di correttezza e completezza. Leggi il disclaimer o segnalaci un problema.
IMMAGINI
IN SINTESI
PROPOSTO DA:
Gatti Silvio
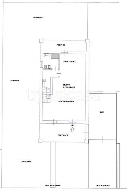
DESCRIZIONE
di recente costruzione con posto auto con garage con terrazza con cantina con giardino con balcone con termocondizionamento di recente costruzione con riscaldamento autonomo
sul confine nel comune di Trivolzio, Di recente costruzione Residenza I Lecci villa Bi-Familare Mq 120 in con Colonne a tutt'altezza Timpano in Legno ed inserti in Mattoni a Vista, Disposta su 2 livelli e composta da Piano terra: Cancello Carraio e C […]
