Valutazione immobiliare indipendente, accurata e gratuita
Appartamento in vendita a Torre d'Isola a 235.000 € (cod.657e2e8b)
Caasa non ha sufficienti informazioni per commentare l'appartamento in vendita a Torre d'Isola - 657e2e8b.
Analisi immobiliare
I dati in posseso di Caasa per quest'immobile sono insufficienti, inaffidabili o contraddittori per proporre un'analisi attendibile.
Mercato immobiliare a Torre d'Isola
Per quanto riguarda più in generale il comune di Torre d'Isola, sono presenti al momento più di trenta annunci per
appartamenti in vendita (meno dell'1% dell'intera provincia) .
La dinamica dei prezzi in tutto il comune mostra che negli ultimi 6 mesi, i prezzi per appartamenti in vendita sono
in debole aumento (+1,29%).
NOVITÀ Il risultato che vedi dipende dai dati che siamo riusciti ad estrarre dall'annuncio: ottieni una stima più accuranta di questo immobile, inserendo dati più precisi.
N.B. L'Opinione di Caasa® è un servizio sperimentale realizzato tramite tecniche di Intelligenza Artificiale, fornito senza alcuna garanzia di correttezza e completezza. Leggi il disclaimer o segnalaci un problema.
IMMAGINI
IN SINTESI
PROPOSTO DA:
Gatti Silvio
DESCRIZIONE
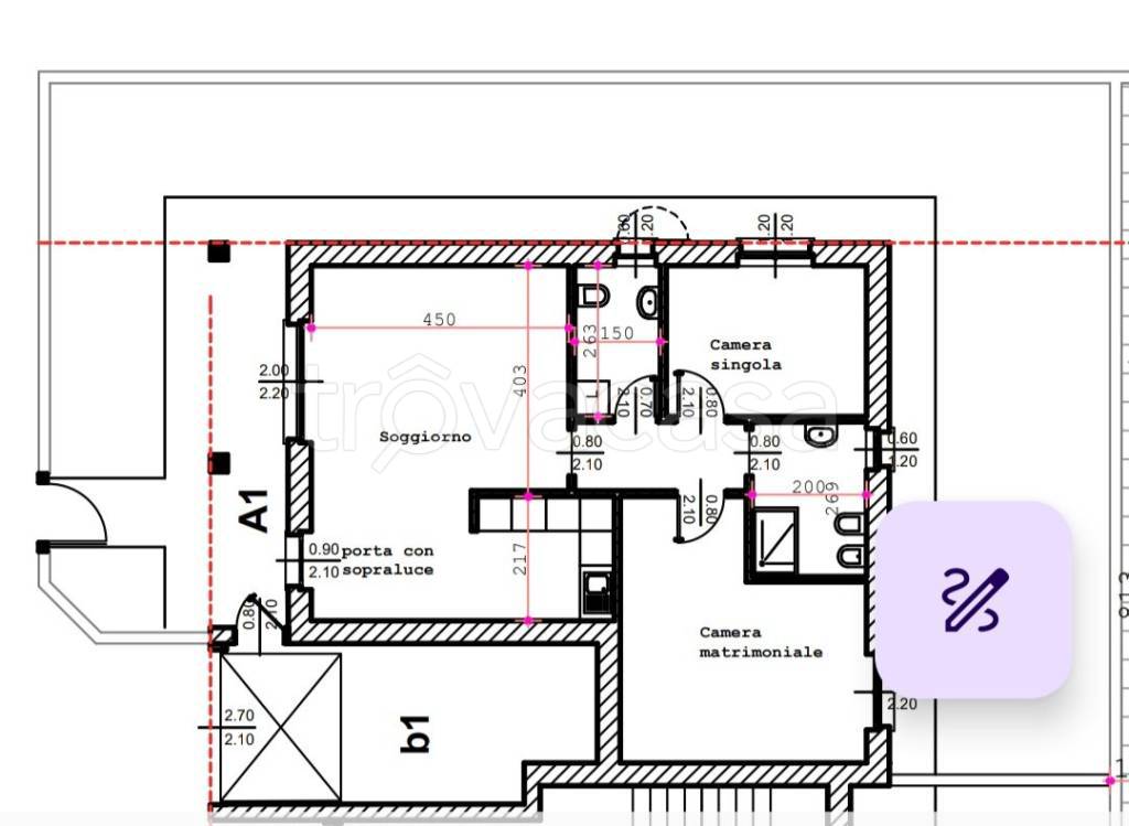
di nuova costruzione con posto auto con terrazza con giardino di nuova costruzione
Sul confine, nel comune Trivolzio. Di prossima realizzazione si prenotano nuove Abitazioni in classe A con consegna tra circa 18 mesi, Appartamento A1 al Piano Terra, 3 locali di 84 Mq composto da: Ingresso Indipendente con cancelletto pedonale Privato, Living Open/Space (Soggiorno Cucina e Zona Pranzo) con ampia Porta-Finestra per accedere a Portico di 10 mq per Pranzi all'aperto e Giardino di 105 mq, Disimpegno, Bagno con Doccia o Vasca a scelta del cliente, Camera Matrimoniale, Camera Singola, Bagno di Servizio con attacco Lavatrice. Possibilità Box auto affiancato all'abitazione con accesso diretto alla proprietà. Porta Blindata, Video-citofono, Tapparelle Elettriche in Alluminio, Serramenti in Pvc con Zanzariere, Riscaldamento a Pavimento, Predisposizione Antifurto, Predisposizione aria Condizionata. Scelta di Ottimo capitolato. Box a Partire da euro 23.000. Disponibilità di n.3 Posti auto ad euro 5.000 cadauno. Per INFO e visite 3402704803 dal Lunedi al Sabato dalle h.9,00 alle h.19,30 (Luce solare permettendo) Visite anche la Domenica dalle h.9,30 alle 11,30 previo accordi almeno un giorno prima

