Valutazione immobiliare indipendente, accurata e gratuita
L'Opinione di Caasa® per l'appartamento in vendita a Siziano a 380.000 € (cod.6579eb36)
Secondo Caasa, per l'appartamento in vendita a Siziano, la richiesta di 380.000 € è significativamente vantaggiosa rispetto agli annunci simili.
Analisi immobiliare
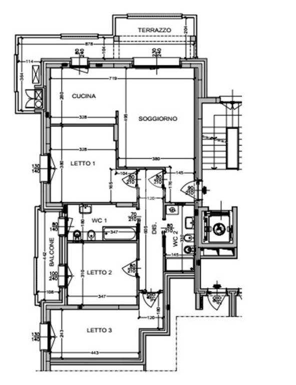
L'appartamento, situato nella zona OMI B1, è proposto in vendita (da TECNOCASA SIZIANO) a
380.000 € per una
superficie commerciale di
136 m² e quindi ad un prezzo per metro quadrato pari a
2794 €/m²
.
Questo prezzo
è più vantaggioso di quello stimato da Caasa per immobili in vendita simili per tipologia, caratteristiche, classe energetica e localizzati nella stessa zona OMI, che è compreso tra
3.326 €/m² e
3.512 €/m².
La conoscenza con buona approssimazione della localizzazione dell'immobile ha consentito di utilizzare come raffronto i dati medi elaborati esattamente nella zona OMI di appertenenza (CENTRALE). Inoltre, Caasa ha potuto affinare la stima anche con la conoscenza della classe energetica (A+) oltre che dello stato dell'immobile (di nuova costruzione) e di alcune caratteristiche significative come la disponibilità di una cantina, la presenza dell'ascensore o il posto auto. Per questi motivi è possibile considerare un intervallo di valori accettabili per l'offerta abbastanza limitato.
Mercato immobiliare a Siziano
Per quanto riguarda più in generale il comune di Siziano, sono presenti al momento circa cento annunci per
appartamenti in vendita (meno dell'1% dell'intera provincia) .
Possiamo inoltre considerare che in tutto il comune negli ultimi 6 mesi, i prezzi per appartamenti in vendita sono
in deciso aumento (+9,64%).
NOVITÀ Il risultato che vedi dipende dai dati che siamo riusciti ad estrarre dall'annuncio: ottieni una stima più accuranta di questo immobile, inserendo dati più precisi.
N.B. L'Opinione di Caasa® è un servizio sperimentale realizzato tramite tecniche di Intelligenza Artificiale, fornito senza alcuna garanzia di correttezza e completezza. Leggi il disclaimer o segnalaci un problema.
IMMAGINI
IN SINTESI
DESCRIZIONE
di nuova costruzione con cantina con terrazza con giardino con posto auto con balcone con cucina abitabile con termocondizionamento di nuova costruzione con ascensore
SIZIANO: RESIDENZA CORALLO - Appartamenti composti da sala con terrazzo, cucina abitabile, tre camere e due bagni e balcone. Cantina e box al piano terra. Possibilità di soluzioni di diverse metrature e con giardino. Consegna autunno 2027 Il progetto prevede l'edificazione di palazzine di quattro piani, tutte dotate di ascensore, che ospiteranno appartamenti di 2-3-4 locali, di varie tipologie per soddisfare le diverse esigenze abitative. L'architettura delle palazzine si distinguerà per le facciate predominantemente realizzate in mattoni a vista, con particolare attenzione alla costruzione in muratura finalizzata al contenimento energetico e acustico, garantendo così un elevato standard di comfort abitativo. Il complesso si distinguerà anche per la sua sostenibilità ambientale, in quanto il fabbisogno energetico delle parti comuni sarà assicurato attraverso un impianto fotovoltaico posizionato sopra al tetto dei box. Il capitolato di alto livello riflette la cura nei dettagli e l'attenzione alla qualità dei materiali adottati. Tra le caratteristiche principali, si evidenziano: - Serramenti esterni in legno bianco, dotati di triplo vetro e zanzariere, che conferiscono un'eleganza raffinata ed elevati standard di isolamento. - Avvolgibili elettrificati in alluminio, garantendo una gestione agevole e automatizzata dell'apertura e della chiusura degli stessi. - Pavimentazione in gres porcellanato, posata e fugata con precisione, per un'estetica moderna e una manutenzione agevole. - Porta blindata, garanzia di sicurezza e protezione per gli abitanti. - Porte interne in laminato bianco, che uniscono funzionalità ed estetica, integrandosi armoniosamente con lo stile degli interni. - Impianto di riscaldamento a pavimento con pompa di calore a corrente, per un comfort termico ottimale e una gestione efficiente dell'energia. - Impianto di raffrescamento con deumidificatore a pavimento e termostato in ogni locale, permettendo un controllo personalizzato della temperatura in ogni ambiente. - Videocitofono, che contr[…]


