Valutazione immobiliare indipendente, accurata e gratuita
L'Opinione di Caasa® per l'appartamento in vendita a Cassolnovo a 40.000 € (cod.65687dbf)
Secondo Caasa, per l'appartamento in vendita a Cassolnovo, la richiesta di 40.000 € è significativamente vantaggiosa rispetto agli annunci simili.
Analisi immobiliare
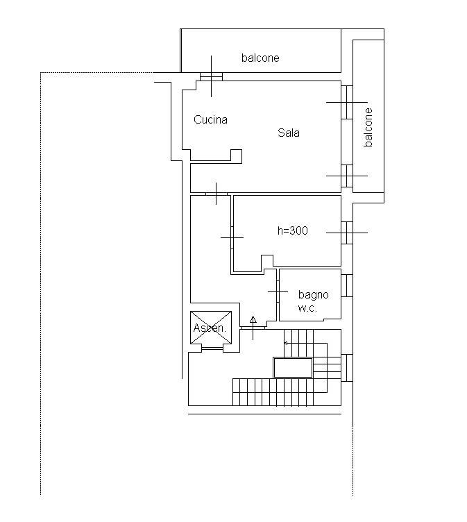
L'appartamento, situato nella zona OMI B1, è proposto in vendita a
40.000 € per una
superficie commerciale di
60 m² e quindi ad un prezzo per metro quadrato pari a
666 €/m²
.
Tale valore
è decisamente inferiore a quello stimato da Caasa per immobili in vendita simili per tipologia e caratteristiche e localizzati nella stessa zona OMI, che è compreso tra
903 €/m² e
1.016 €/m².
Grazie alla conoscenza con buona approssimazione della localizzazione dell'immobile, è stato possibile utilizzare come raffronto i dati medi elaborati esattamente nella zona OMI di appertenenza (CENTRALE). Anche se Caasa non è riuscita a determinare la classe energetica, ad affinare la stima ha contribuito anche la presenza di alcune caratteristiche significative come la presenza dell'ascensore. Per questi motivi i valori accettabili per l'offerta costituiscono un intervallo relativamente limitato.
Mercato immobiliare a Cassolnovo
Per quanto riguarda più in generale il comune di Cassolnovo, sono presenti al momento più di cento annunci per
appartamenti in vendita (meno del 5% dell'intera provincia) .
La dinamica dei prezzi in tutto il comune mostra che negli ultimi 6 mesi, i prezzi per appartamenti in vendita sono
in deciso calo (-7,82%).
NOVITÀ Il risultato che vedi dipende dai dati che siamo riusciti ad estrarre dall'annuncio: ottieni una stima più accuranta di questo immobile, inserendo dati più precisi.
N.B. L'Opinione di Caasa® è un servizio sperimentale realizzato tramite tecniche di Intelligenza Artificiale, fornito senza alcuna garanzia di correttezza e completezza. Leggi il disclaimer o segnalaci un problema.
IMMAGINI
IN SINTESI
PROPOSTO DA:
Gabetti - Trecate - Garlaschè Giuseppe
