Valutazione immobiliare indipendente, accurata e gratuita
Casa indipendente in vendita a Bereguardo a 300.000 € (cod.659cb42a)
Caasa non ha sufficienti informazioni per commentare la casa indipendente in vendita a Bereguardo - 659cb42a.
Analisi immobiliare
I dati in posseso di Caasa per quest'immobile sono insufficienti, inaffidabili o contraddittori per proporre un'analisi attendibile.
Mercato immobiliare a Bereguardo
Per quanto riguarda più in generale il comune di Bereguardo, sono presenti al momento più di cinquanta annunci per
case indipendenti in vendita (meno dell'1% dell'intera provincia) .
Possiamo inoltre considerare che in tutto il comune negli ultimi 6 mesi, i prezzi per case indipendenti in vendita sono
in sostanziale calo (-5,07%).
NOVITÀ Il risultato che vedi dipende dai dati che siamo riusciti ad estrarre dall'annuncio: ottieni una stima più accuranta di questo immobile, inserendo dati più precisi.
N.B. L'Opinione di Caasa® è un servizio sperimentale realizzato tramite tecniche di Intelligenza Artificiale, fornito senza alcuna garanzia di correttezza e completezza. Leggi il disclaimer o segnalaci un problema.
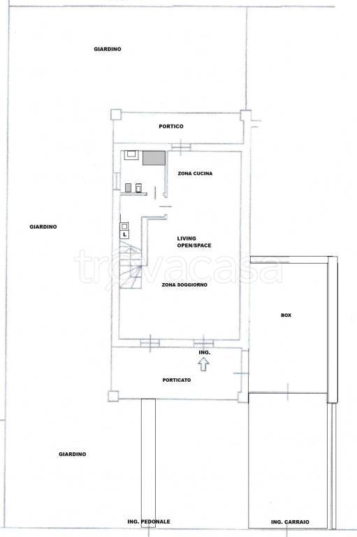
IMMAGINI
IN SINTESI
PROPOSTO DA:
Gatti Silvio
DESCRIZIONE
di recente costruzione con posto auto con giardino con cantina con termocondizionamento con balcone con garage di recente costruzione
sul confine nel comune di Trivolzio, Di recente costruzione Residenza I Lecci villa Bi-Familare Mq 120 in con Colonne a tutt'altezza Timpano in Legno ed inserti in Mattoni a Vista, Disposta su 2 livelli e composta da Piano terra: Cancello Carraio e C […]
