Valutazione immobiliare indipendente, accurata e gratuita
L'Opinione di Caasa® per l'appartamento in vendita a Vedano al Lambro a 444.000 € (cod.64e0a940)
Secondo Caasa, per l'appartamento in vendita a Vedano al Lambro, la richiesta di 444.000 € è significativamente vantaggiosa rispetto agli annunci simili.
Analisi immobiliare
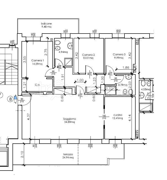
L'appartamento, situato nella zona OMI B1, è proposto in vendita (da i progetti) a
444.000 € per una
superficie commerciale di
145 m² e quindi ad un prezzo per metro quadrato pari a
3062 €/m²
.
Questo valore
è significativamente più basso di quello stimato da Caasa per immobili in vendita simili per tipologia, caratteristiche, classe energetica e zona, che è compreso tra
4.007 €/m² e
4.284 €/m².
Considerata la posizione dell'appartamento si sono utilizzati in raffronto i valori medi nelle zone limitrofe . Ad affinare la stima ha contribuito anche la classe energetica (A+) oltre alla conoscenza dello stato dell'immobile (di nuova costruzione) e di alcune caratteristiche significative come il posto auto o la disponibilità di una cantina. Per queste ragioni è possibile ottenere un intervallo di valori accettabili per l'offerta relativamente limitato.
Mercato immobiliare a Vedano al Lambro
Per quanto riguarda più in generale il comune di Vedano al Lambro, sono presenti al momento più di 150 annunci per
appartamenti in vendita (meno del 5% dell'intera provincia) .
Per quanto riguarda la dinamica dei prezzi, negli ultimi 6 mesi i prezzi medi in tutto il comune per appartamenti in vendita sono
in sostanziale aumento (+5,72%).
NOVITÀ Il risultato che vedi dipende dai dati che siamo riusciti ad estrarre dall'annuncio: ottieni una stima più accuranta di questo immobile, inserendo dati più precisi.
N.B. L'Opinione di Caasa® è un servizio sperimentale realizzato tramite tecniche di Intelligenza Artificiale, fornito senza alcuna garanzia di correttezza e completezza. Leggi il disclaimer o segnalaci un problema.
IMMAGINI
IN SINTESI
DESCRIZIONE
di nuova costruzione con cantina con terrazza con posto auto di nuova costruzione con cucina abitabile con balcone
Vendita diretta, no provvigioni. TRADIZIONE E INNOVAZIONE, combinazione vincente per la Residenza Mirabello Living. Capitolato innovativo, alto risparmio energetico. Extra capitolato compreso nel prezzo, serramento soggiorno scorrevole, porte interne finitura matrix, impianto VMC puntuale finito. E' un'esclusiva I PROGETTI tel. 039/2054154 e PLANET IMMOBILIARE S.R.L tel. 333/3513609. https://mirabelloliving.com/ Ampio Quattro Locali al piano Primo, composto accogliente ingresso con vano guardaroba, doppia zona living ( salotto/ conversazione e pranzo ) accesso al terrazzo di mq. 24, cucina abitabile molto luminosa e spaziosa, predisposta per arredo completo angolare. Zona notte suddivisa in camera matrimoniale con cabina armadio e bagno dedicato e avente accesso al terrazzino relax riservato, due camere per ragazzi e un servizio. Corridoio della zona notte con ideale profondità per posizionare arredo/guardaroba e vano asciugatrice/lavatrice. La proprietà è completa di cantina e vi è la possibilità di scegliere il box singolo o doppio. Tutte le finiture sono disponibili e consultabili sul capitolato descrittivo delle opere allegato a questo annuncio Questa nuova palazzina nel comune di Vedano al Lambro offre un ambiente tranquillo e residenziale, ideale per chi cerca una zona ben servita e in prossimità dei principali servizi e infrastrutture. Una comoda pista ciclabile permette di raggiungere il centro paese e il parco in totale serenità. Inoltre, la vicinanza a Monza e a Milano, raggiungibili in breve tempo, offre un'ampia gamma di opportunità lavorative e di svago. L'alto risparmio energetico di questo appartamento è un ulteriore punto di forza, offrendo la possibilità di ridurre i costi delle bollette energetiche e contribuire alla salvaguardia dell'ambiente. La residenza Mirabello Living, in armonia con il contesto, offre appartamenti di 3 e 4 locali con ampi spazi da vivere. Inoltre i terrazzi e i giardini privati sono un ulteriore plus per momenti di relax e di convivialità. Contattateci per le ulte[…]

