Valutazione immobiliare indipendente, accurata e gratuita
Casa indipendente in vendita ad Usmate Velate a 476.850 € (cod.65270b70)
Caasa non ha sufficienti informazioni per commentare la casa indipendente in vendita ad Usmate Velate - 65270b70.
Analisi immobiliare
I dati in posseso di Caasa per quest'immobile sono insufficienti, inaffidabili o contraddittori per proporre un'analisi attendibile.
Mercato immobiliare ad Usmate Velate
Per quanto riguarda più in generale il comune di Usmate Velate, sono presenti al momento circa cento annunci per
case indipendenti in vendita (meno del 5% dell'intera provincia) .
Per quanto riguarda la dinamica dei prezzi, negli ultimi 6 mesi i prezzi medi in tutto il comune per case indipendenti in vendita sono
in forte aumento (+10,92%).
NOVITÀ Il risultato che vedi dipende dai dati che siamo riusciti ad estrarre dall'annuncio: ottieni una stima più accuranta di questo immobile, inserendo dati più precisi.
N.B. L'Opinione di Caasa® è un servizio sperimentale realizzato tramite tecniche di Intelligenza Artificiale, fornito senza alcuna garanzia di correttezza e completezza. Leggi il disclaimer o segnalaci un problema.
IMMAGINI
IN SINTESI
PROPOSTO DA:
Case all'Asta
DESCRIZIONE
di recente costruzione con posto auto con garage di recente costruzione con cortile in asta giudiziaria
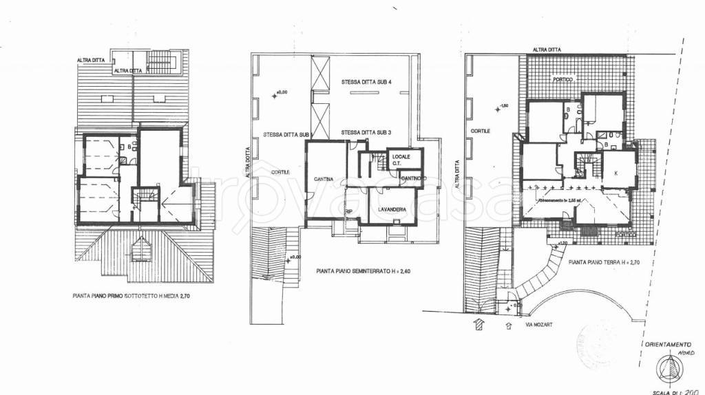
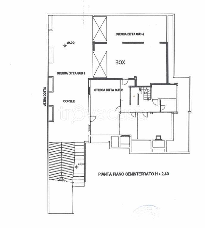
Villa con due garage, tre bagni e portico disposta su tre livelli e composta da cinque locali e due bagni al piano terra, cinque locali al piano seminterrato e un sottotetto con bagno al piano primo. Dispone anche di un portico e di un cortile al pia […]
