Valutazione immobiliare indipendente, accurata e gratuita
Casa indipendente in vendita a Seveso in zona Baruccana a 360.000 € (cod.656177bd)
Caasa non ha sufficienti informazioni per commentare la casa indipendente a Seveso in zona Baruccana - 656177bd.
Analisi immobiliare
I dati in posseso di Caasa per quest'immobile sono insufficienti, inaffidabili o contraddittori per proporre un'analisi attendibile.
Mercato immobiliare a Seveso
Per quanto riguarda più in generale la città di Seveso, sono presenti al momento più di 200 annunci per
case indipendenti in vendita (meno del 5% dell'intera provincia)
e il maggior numero di annunci per questa tipologia sono relativi proprio alla zona di Baruccana.
Per quanto riguarda la richiesta media in zona Baruccana, dove sorge la casa indipendente, essa è pari a circa
2.275 €/m² per case indipendenti in vendita.
Relativamente alla dinamica dei prezzi, possiamo dire che negli ultimi 6 mesi i prezzi medi in tutta la città per case indipendenti in vendita sono
in leggero aumento (+3,08%).
NOVITÀ Il risultato che vedi dipende dai dati che siamo riusciti ad estrarre dall'annuncio: ottieni una stima più accuranta di questo immobile, inserendo dati più precisi.
N.B. L'Opinione di Caasa® è un servizio sperimentale realizzato tramite tecniche di Intelligenza Artificiale, fornito senza alcuna garanzia di correttezza e completezza. Leggi il disclaimer o segnalaci un problema.
IMMAGINI
IN SINTESI
PROPOSTO DA:
Desiohome Srl di Donvito Massimiliano e Donvito Gilberto
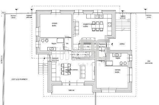
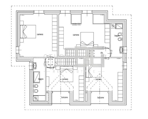
DESCRIZIONE
di nuova costruzione con posto auto con terrazza con balcone con giardino con garage di nuova costruzione
Seveso Centro, proponiamo in vendita due porzioni di villa bifamiliare di nuova costruzione, progettate con particolare attenzione al comfort abitativo e all’efficienza energetica. Ogni unità è composta da quattro locali oltre doppi servizi e balcone, con ambienti ampi e luminosi, studiati per garantire funzionalità e vivibilità quotidiana. La zona giorno si apre su spazi accoglienti e ben distribuiti, mentre la zona notte offre camere confortevoli ideali per famiglie. Le abitazioni sono inserite in contesto tranquillo e riservato, perfetto per chi desidera privacy e qualità della vita, pur rimanendo comode ai principali servizi, scuole, negozi e collegamenti. Punto di forza di ciascuna porzione è il giardino privato di circa 700 mq, ideale per momenti di relax all’aperto, per famiglie con bambini o per chi ama vivere gli spazi esterni. Completa le proprietà un posto auto doppio coperto. Soluzioni moderne, personalizzabili nelle finiture, con consegna prevista per primavera 2028. Un’opportunità unica per chi cerca una casa nuova, indipendente e immersa nella tranquillità senza rinunciare alla comodità dei servizi. Oppure vieni a trovarci nel nostro studio in via Matteotti 22, Cesano Maderno (MB



