Valutazione immobiliare indipendente, accurata e gratuita
L'Opinione di Caasa® per l'appartamento in vendita a Seregno a 475.000 € (cod.6572b529)
Secondo Caasa, per l'appartamento in vendita a Seregno, la richiesta di 475.000 € è equilibrata rispetto agli annunci simili.
Analisi immobiliare
L'appartamento, situato nella zona OMI B2, è proposto in vendita a
475.000 € per una
superficie commerciale di
148 m² e quindi ad un prezzo per metro quadrato pari a
3209 €/m²
.
Tale prezzo
è molto vicino a quello stimato da Caasa per immobili in vendita simili per tipologia, caratteristiche, classe energetica e zona, che è compreso tra
3.114 €/m² e
3.353 €/m².
Presa in considerazione la posizione dell'appartamento si sono utilizzati in raffronto i valori medi nelle zone limitrofe . Ad affinare la stima ha contribuito anche la classe energetica (A+) oltre alla conoscenza dello stato dell'immobile (di nuova costruzione) e di alcune caratteristiche significative come il garage o la disponibilità di una cantina. Per queste ragioni i valori accettabili per l'offerta costituiscono un intervallo relativamente limitato.
Mercato immobiliare a Seregno
Per quanto riguarda più in generale la città di Seregno, sono presenti al momento circa mille annunci per
appartamenti in vendita (meno del 10% dell'intera provincia) .
Relativamente alla dinamica dei prezzi, possiamo dire che negli ultimi 6 mesi i prezzi medi in tutta la città per appartamenti in vendita sono
in leggero aumento (+2,41%).
NOVITÀ Il risultato che vedi dipende dai dati che siamo riusciti ad estrarre dall'annuncio: ottieni una stima più accuranta di questo immobile, inserendo dati più precisi.
N.B. L'Opinione di Caasa® è un servizio sperimentale realizzato tramite tecniche di Intelligenza Artificiale, fornito senza alcuna garanzia di correttezza e completezza. Leggi il disclaimer o segnalaci un problema.
IMMAGINI
IN SINTESI
PROPOSTO DA:
STUDIO BRIANTEO - WWW.STUDIOBRIANTEO.IT
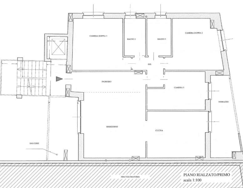
DESCRIZIONE
di nuova costruzione con posto auto con terrazza con cantina con balcone con garage di nuova costruzione
Seregno: Nel prestigioso quartiere di Santa Valeria, in un contesto signorile di nuova costruzione, proponiamo un appartamento esclusivo in classe elevata, concepito per offrire comfort, design contemporaneo e tecnologie all’avanguardia. L’immobile, situato al piano rialzato, si sviluppa su 160 m² di spazi generosi e perfettamente distribuiti, pensati per una vita quotidiana elegante e funzionale. La zona giorno, ampia e luminosa, si apre verso il balcone di 12 m² e verso un terrazzo di 15 m², perfetti per colazioni all’aperto, momenti di relax o cene estive. La cucina è abitabile, un ambiente versatile e accogliente, ideale per chi ama vivere la casa con convivialità. La zona notte comprende tre camere da letto dal taglio razionale e ben separate dagli spazi diurni, oltre a due bagni finemente predisposti per sanitari sospesi e materiali di pregio. Completano la proprietà una cantina e due posti auto. Per ulteriori informazioni o per fissare un appuntamento di visione, non esitate a contattarci. I dati e le immagini riportati non costituiscono elemento contrattuale. Per motivi di privacy, l’indirizzo e il puntatore della mappa potrebbero non corrispondere alla reale ubicazione dell’immobile. QUATTRO BUONI MOTIVI PER SCEGLIERE QUESTO IMMOBILE: 1 – Posizione strategica 2 – Ampie metrature e massima flessibilità 3 – Alta efficienza energetica 4 – Capitolato personalizzabile


