Valutazione immobiliare indipendente, accurata e gratuita
L'Opinione di Caasa® per l'appartamento in vendita a Nova Milanese a 364.000 € (cod.656de6a1)
Secondo Caasa, per l'appartamento in vendita a Nova Milanese, la richiesta di 364.000 € è leggermente vantaggiosa rispetto agli annunci simili.
Analisi immobiliare
L'appartamento, situato nella zona OMI D1, è proposto in vendita a
364.000 € per una
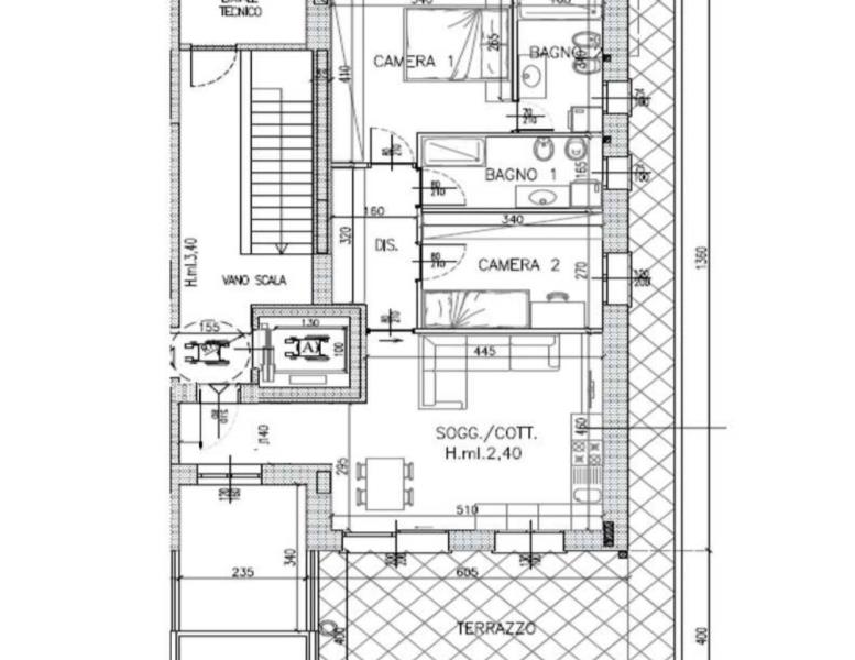
superficie commerciale di
129 m² e quindi ad un prezzo per metro quadrato pari a
2821 €/m²
.
Tale prezzo
è leggeremente più conveniente di quello stimato da Caasa per immobili in vendita simili per tipologia e caratteristiche, presenti nella stessa zona, che è compreso tra
2.920 €/m² e
3.160 €/m².
Presa in considerazione la posizione dell'appartamento sono stati utilizzati come raffronto i valori medi nelle zone limitrofe . Caasa non è stata in grado di determinare la classe energetica, ma ad affinare la stima hanno contribuito però anche lo stato dell'immobile (di nuova costruzione) e la presenza di alcune caratteristiche significative come il posto auto o la disponibilità di una cantina. Per questi motivi i valori possibili per l'offerta costituiscono un intervallo relativamente ampio.
Mercato immobiliare a Nova Milanese
Per quanto riguarda più in generale la città di Nova Milanese, sono presenti al momento più di 300 annunci per
appartamenti in vendita (meno del 5% dell'intera provincia) .
Relativamente alla dinamica dei prezzi, possiamo dire che negli ultimi 6 mesi i prezzi medi in tutta la città per appartamenti in vendita sono
sostanzialmente stabili (+0,63%).
NOVITÀ Il risultato che vedi dipende dai dati che siamo riusciti ad estrarre dall'annuncio: ottieni una stima più accuranta di questo immobile, inserendo dati più precisi.
N.B. L'Opinione di Caasa® è un servizio sperimentale realizzato tramite tecniche di Intelligenza Artificiale, fornito senza alcuna garanzia di correttezza e completezza. Leggi il disclaimer o segnalaci un problema.
IMMAGINI
IN SINTESI
PROPOSTO DA:
MONCADA IMMOBILIARE
DESCRIZIONE
di nuova costruzione con terrazza con cantina di nuova costruzione con posto auto con termocondizionamento
La palazzina è stata progettata e realizzata nel rispetto delle normative vigenti, per quanto riguarda la prestazione energetica nell’edilizia, con massima attenzione alla scelta degli isolamenti termici e acustici e all'installazione di impianti termici ed elettrici altamente efficienti, come impianti di riscaldamento a pavimento con pompa di calore e possibilità di installare un impianti fotovoltaico dedicato, garantendo un notevole risparmio energetico e un comfort abitativo ottimale. Ulteriore cura è stata riservata alla salubrità dell’aria con l’installazione del sistema di Ventilazione Meccanica Integrata a serramento, estrattori bagni, semplifica e migliora la ventilazione all’interno degli edifici, con un ricambio costante ed automatico dell’aria. Il recuperatore di calore entalpico a doppio flusso incrociato controcorrente consente il recupero dell’energia termica, con la massima semplicità di manutenzione ed un assorbimento elettrico davvero ridotto. Triplo vetro, avvolgibili motorizzati in alluminio coibentato. Possibilità di scelta delle finiture L'appartamento è destinato a chi cerca una soluzione esclusiva, di metratura non eccessiva ma ben distribuita e di facile gestione. Il valore aggiunto dell'esclusività dell'appartamento è il piano, le piccole dimensioni dello stabile, il terrazzo e la classe energetica collocabile tra A2 e A3. Ampio box con cantina a parte € 25.000. Nessuna spesa di allacciamenti

