Valutazione immobiliare indipendente, accurata e gratuita
L'Opinione di Caasa® per l'appartamento in vendita a Nova Milanese a 318.000 € (cod.650067c9)
Secondo Caasa, per l'appartamento in vendita a Nova Milanese, la richiesta di 318.000 € è significativamente vantaggiosa rispetto agli annunci simili.
Analisi immobiliare
L'appartamento, situato nella zona OMI D1, è proposto in vendita a
318.000 € per una
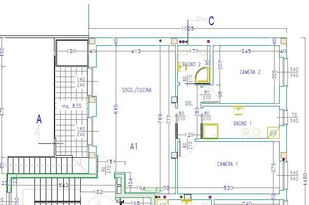
superficie commerciale di
120 m² e quindi ad un prezzo per metro quadrato pari a
2650 €/m²
.
Tale prezzo
è più conveniente di quello stimato da Caasa per immobili in vendita simili per tipologia, caratteristiche, classe energetica e zona, che è compreso tra
3.239 €/m² e
3.453 €/m².
Presa in considerazione la posizione dell'appartamento si sono utilizzati in raffronto i valori medi nelle zone limitrofe . Ad affinare la stima ha contribuito anche la classe energetica (A) oltre alla conoscenza dello stato dell'immobile (di nuova costruzione) e di alcune caratteristiche significative come la presenza dell'ascensore. In virtù di queste considerazioni i valori accettabili per l'offerta costituiscono un intervallo relativamente limitato.
Mercato immobiliare a Nova Milanese
Per quanto riguarda più in generale la città di Nova Milanese, sono presenti al momento più di 300 annunci per
appartamenti in vendita (meno del 5% dell'intera provincia) .
Relativamente alla dinamica dei prezzi, possiamo dire che negli ultimi 6 mesi i prezzi medi in tutta la città per appartamenti in vendita sono
in forte aumento (+10,19%).
NOVITÀ Il risultato che vedi dipende dai dati che siamo riusciti ad estrarre dall'annuncio: ottieni una stima più accuranta di questo immobile, inserendo dati più precisi.
N.B. L'Opinione di Caasa® è un servizio sperimentale realizzato tramite tecniche di Intelligenza Artificiale, fornito senza alcuna garanzia di correttezza e completezza. Leggi il disclaimer o segnalaci un problema.
IMMAGINI
IN SINTESI
PROPOSTO DA:
Gabetti Franchising Paderno Dugnano
DESCRIZIONE
di nuova costruzione di nuova costruzione con termocondizionamento con giardino con ascensore
CANTIERI E NUOVE COSTRUZIONI" - CULTURA IMMOBILIARE SRL propone in vendita in Nova Milanese, via Della Croce Rossa Italiana, 10, nuova residenza in corso di costruzione in , costituita da n. 2 corpi scala muniti di ascensore, in assenza di barriere architettoniche, per complessivi n. 8 abitazioni oltre box. Il fabbricato è posizionato in corrispondenza del Comune di Nova Milanese, nonchè del "canale Villoresi" costeggiato dalla pista ciclo pedonale, che permette di raggiungere la città di Monza, piuttosto che il parco del "Grugnotorto" ed il parco delle "Groane". La costruzione vanta le più ricercate tecniche costruttive, che rispettano le più recenti normative antisismiche, le cui facciate esterne saranno realizzate con sistema ICF, blocchi in EPS espanso riempiti in calcestruzzo armato con finitura esterna in rasatura colorata in pasta e/o tinteggiata. Questo sistema costruttivo garantisce un'elevata prestazione energetica dell'intera costruzione sia a livello termico, che acustico. Serramenti in PVC di colore bianco ad alto rendimento con trasmittanza Uw= 1,3/m2K, tapparelle motorizzate munite di cassonetto coibentato, zanzariere e portoncino d'ingresso blindato. Impianto elettrico BTicino serie "living Light". Impianto di riscaldamento e raffrescamento a pavimento a gestione autonoma e impianto di ventilazione meccanica "WMC" che garantisce agli appartamenti un'adeguata vivibilità e salubrità degli ambienti interni ed impianto fotovoltaico condominiale che permetterà di avere un notevole risparmio dei costi. Le finiture interne quali pavimenti, rivestimenti, porte interne, sanitari e rubinetterie di design, verranno posati su indicazione dell'acquirente in funzione della dotazione progettuale che prevede tre tipologie di finitura quali: "Passion, Premium ed Exclusive". Impianto video-citofonico e predisposizione impianto anti-intrusione. Consegna entro febbraio 2026. APPARTAMENTO "A1" Appartamento posto al piano primo con ingresso sul comodo soggiorno con cucina a vista, balconata munita di scala este[…]








