Valutazione immobiliare indipendente, accurata e gratuita
L'Opinione di Caasa® per l'appartamento in vendita a Nova Milanese a 331.000 € (cod.63b81fe9)
Secondo Caasa, per l'appartamento in vendita a Nova Milanese, la richiesta di 331.000 € è significativamente vantaggiosa rispetto agli annunci simili.
Analisi immobiliare
L'appartamento, situato nella zona OMI D1, è proposto in vendita a
331.000 € per una
superficie commerciale di
121 m² e quindi ad un prezzo per metro quadrato pari a
2735 €/m²
.
Tale prezzo
è più conveniente di quello stimato da Caasa per immobili in vendita simili per tipologia, caratteristiche, classe energetica e zona, che è compreso tra
3.386 €/m² e
3.598 €/m².
Presa in considerazione la posizione dell'appartamento si sono utilizzati in raffronto i valori medi nelle zone limitrofe . Ad affinare la stima ha contribuito anche la classe energetica (A+) oltre alla conoscenza dello stato dell'immobile (di nuova costruzione) e di alcune caratteristiche significative come la disponibilità di una cantina. Per queste ragioni i valori accettabili per l'offerta costituiscono un intervallo relativamente limitato.
Mercato immobiliare a Nova Milanese
Per quanto riguarda più in generale la città di Nova Milanese, sono presenti al momento più di 300 annunci per
appartamenti in vendita (meno del 5% dell'intera provincia) .
Relativamente alla dinamica dei prezzi, possiamo dire che negli ultimi 6 mesi i prezzi medi in tutta la città per appartamenti in vendita sono
sostanzialmente stabili (+0,36%).
NOVITÀ Il risultato che vedi dipende dai dati che siamo riusciti ad estrarre dall'annuncio: ottieni una stima più accuranta di questo immobile, inserendo dati più precisi.
N.B. L'Opinione di Caasa® è un servizio sperimentale realizzato tramite tecniche di Intelligenza Artificiale, fornito senza alcuna garanzia di correttezza e completezza. Leggi il disclaimer o segnalaci un problema.
IMMAGINI
IN SINTESI
DESCRIZIONE
di nuova costruzione con terrazza con cantina di nuova costruzione con termocondizionamento con balcone con riscaldamento autonomo
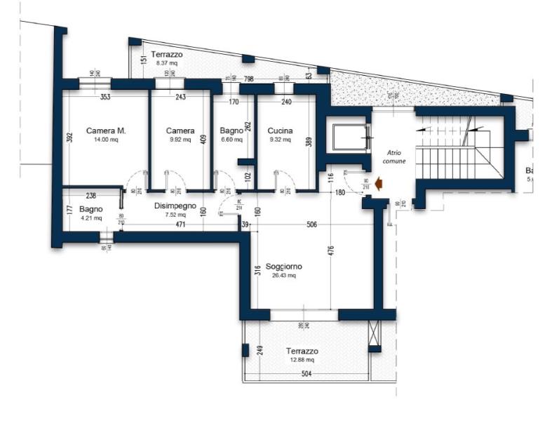
CANTIERE - CONSEGNA FINE 2026 NUOVA COSTRUZIONE - Il nuovo progetto residenziale è una realtà abitativa dove tecnologia, eleganza e funzionalità si fondono per dar vita a soluzioni abitative di alto livello. A PARTIRE DA € 2.900/00 al mq. - A pochi passi dal centro - Comodo per fermata del pulmann e per ingresso in Superstrada Mi-Meda. - Posizione tranquilla. La costruzione prevede la realizzazione di 2 piccole palazzine, rispettivamente di 5 e di 6 unità abitative. Gli appartamenti saranno di varie metrature, dal 2 al 4 locali, con terrazzi o giardini. - Impianto di ventilazione meccanica - Predisposizione impianto di allarme - Predisposizione aria condizionata - Sanitari sospesi. - Pannelli fotovoltaici. - Tapparelle elettriche - Impianto di riscaldamento autonomo full electric Appartamento di 4 locali posto al primo piano , così suddiviso: ingresso direttamente in un ampio soggiorno con cucina a vista e con uscita sul TERRAZZO di 13 mq., un disimpegno n otte che ci accompagna in 3 camere da letto, di cui due con affaccio su un TERRAZZINO di 8 mq, e doppi servizi. Al piano seminterrato troviamo la cantina. Possibilità di box € 20.000/00. LA COSTRUZIONE SARA' IN Tutte le rifiniture interne saranno personalizzabili. Chiamaci per fissare un appuntamento nei nostri uffici, saremo lieti di darti tutte le informazioni


