Valutazione immobiliare indipendente, accurata e gratuita
L'Opinione di Caasa® per l'appartamento in vendita a Monza in zona Ospedale San Gerardo a 520.000 € (cod.655919d1)
Secondo Caasa, per l'appartamento a Monza in zona Ospedale San Gerardo, la richiesta di 520.000 € è leggermente svantaggiosa rispetto agli annunci simili.
Analisi immobiliare
L'appartamento, situato vicino a Via Lorenzo Perosi nella zona OMI C4, è proposto in vendita a
520.000 € per una
superficie commerciale di
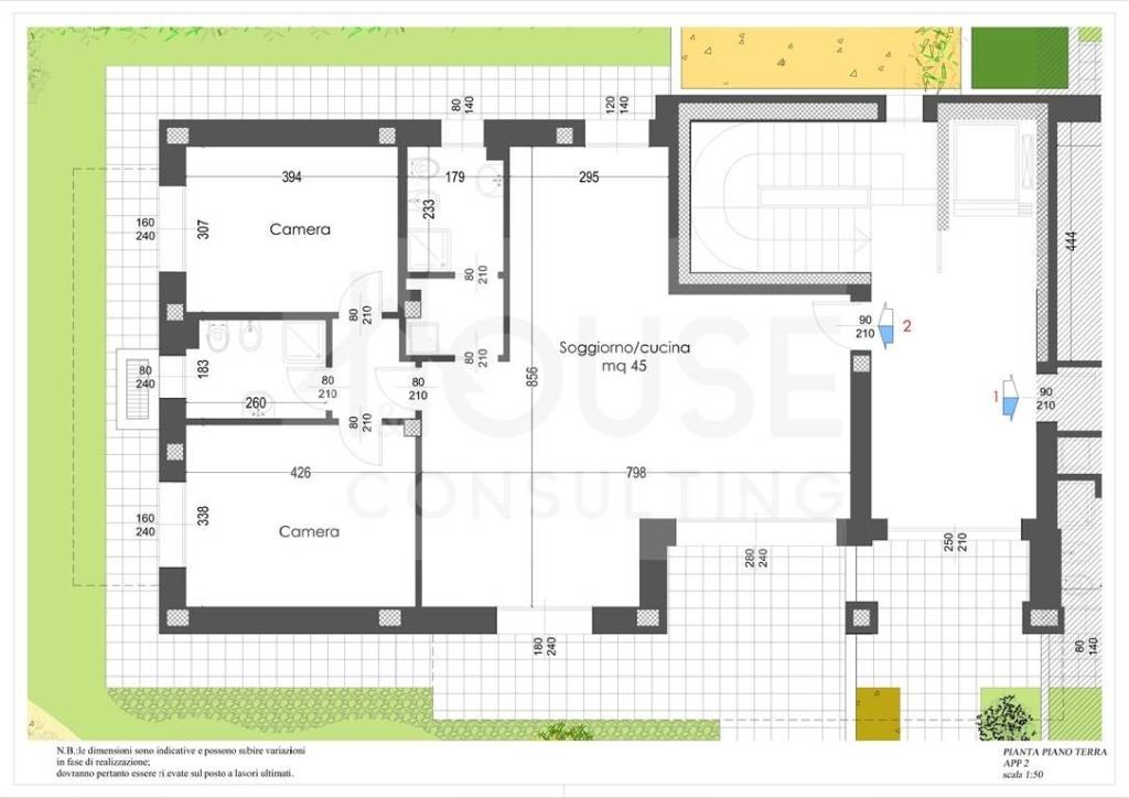
130 m² e quindi ad un prezzo per metro quadrato pari a
4000 €/m²
.
Tale prezzo
è leggermente meno conveniente di quello stimato da Caasa per immobili in vendita simili per tipologia e caratteristiche e localizzati nella stessa zona OMI, che è compreso tra
3.623 €/m² e
3.873 €/m².
Grazie alla conoscenza con buona approssimazione della localizzazione dell'immobile, è stato possibile utilizzare come raffronto i dati medi elaborati esattamente nella zona OMI di appertenenza (PARCO, OSPEDALE) per appartamenti (da 2.775 €/m² a 4.360 €/m²) e per trivani (da 2.740 €/m² a 4.230 €/m²). Anche se Caasa non è riuscita a determinare la classe energetica, ad affinare la stima hanno contribuito anche lo stato dell'immobile (di nuova costruzione) e la presenza di alcune caratteristiche significative come la disponibilità di una cantina. Per queste considerazioni i valori accettabili per l'offerta costituiscono un intervallo relativamente limitato.
Mercato immobiliare a Monza
Per quanto riguarda più in generale la città di Monza, sono presenti al momento ben oltre 2.000 annunci per
appartamenti in vendita (quasi il 20% dell'intera provincia)
e il maggior numero di annunci per questa tipologia sono relativi alla zona di Centro Storico, mentre la zona di Ospedale San Gerardo risulta molto meno attiva considerando il numero di annunci presenti.
La richiesta media nella zona dove sorge l'appartamento (Ospedale San Gerardo pressi Via Lorenzo Perosi) è pari a
3.570 €/m² e ne fa la più pregiata della città .
Relativamente alla dinamica dei prezzi, possiamo dire che negli ultimi 6 mesi i prezzi medi in tutta la città per appartamenti in vendita sono
in sostanziale aumento (+7,27%).
NOVITÀ Il risultato che vedi dipende dai dati che siamo riusciti ad estrarre dall'annuncio: ottieni una stima più accuranta di questo immobile, inserendo dati più precisi.
N.B. L'Opinione di Caasa® è un servizio sperimentale realizzato tramite tecniche di Intelligenza Artificiale, fornito senza alcuna garanzia di correttezza e completezza. Leggi il disclaimer o segnalaci un problema.
IMMAGINI
IN SINTESI
PROPOSTO DA:
multiservice
DESCRIZIONE
di nuova costruzione con cantina con terrazza con termocondizionamento di nuova costruzione con giardino con cucina abitabile con cortile
Rif. Appartamento 2 Appartamento al piano terra di tre locali con doppi servizi 130 mq con giardino di 131 mq. In elegante mini palazzina di 9 unità abitative, proponiamo quattro locali al piano terra, composto da: - Ingresso - Ampio soggiorno con grande vetrata scorrevole con accesso diretto al patio coperto di 20 mq c.a. - Cucina abitabile - Doppi servizi finestrati - due comode camere Tutto l’appartamento è collegato direttamente al giardino privato grazie alla tripla esposizione. Ampia disponibilità di personalizzazione degli interni grazie a un capitolato ricco e curato nei dettagli, con finiture di pregio come ceramiche di grandi formati ( fino a 90x90 ) o parquet in tutti gli ambienti. Ogni residenza è progettata per offrire massimo confort abitativo e dotazioni tecnologiche innovative, quali: - Riscaldamento a pavimento con termostato a gestione autonoma, predisposizione di impianto di ventilazione meccanica controllata. - Predisposizione condizionamento e deumidificazione. - Pannelli fotovoltaici per la produzione di energia elettrica. - Tutte gli appartamenti sono dotati di serramenti certificati per il risparmio energetico con grandi vetrate scorrevoli, tapparelle elettriche e zanzariere. Completa la soluzione la cantina e la possibilità di box singolo o doppio dotati di serranda automatica Per ulteriori informazioni House&Consulting Arcore 0396012742 www.hcarcore.it Le immagini sono fornite al solo scopo illustrativo e non costituiscono elemento contrattuale










