Valutazione immobiliare indipendente, accurata e gratuita
Appartamento in vendita a Meda a 88.043 € (cod.6569484d)
Caasa non ha sufficienti informazioni per commentare l'appartamento in vendita a Meda - 6569484d.
Analisi immobiliare
I dati in posseso di Caasa per quest'immobile sono insufficienti, inaffidabili o contraddittori per proporre un'analisi attendibile.
Mercato immobiliare a Meda
Per quanto riguarda più in generale la città di Meda, sono presenti al momento più di 300 annunci per
appartamenti in vendita (meno del 5% dell'intera provincia) .
Relativamente alla dinamica dei prezzi, possiamo dire che negli ultimi 6 mesi i prezzi medi in tutta la città per appartamenti in vendita sono
in calo (-3,46%).
NOVITÀ Il risultato che vedi dipende dai dati che siamo riusciti ad estrarre dall'annuncio: ottieni una stima più accuranta di questo immobile, inserendo dati più precisi.
N.B. L'Opinione di Caasa® è un servizio sperimentale realizzato tramite tecniche di Intelligenza Artificiale, fornito senza alcuna garanzia di correttezza e completezza. Leggi il disclaimer o segnalaci un problema.
IMMAGINI
IN SINTESI
PROPOSTO DA:
Studio Aste Immobiliari
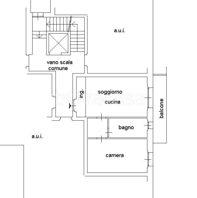
DESCRIZIONE
di recente ristrutturazione con posto auto con terrazza con balcone di recente ristrutturazione con angolo cottura in asta giudiziaria
CONTATTACI SUBITO! PER ESEGUIRE IN TOTALE SICUREZZA TUTTE LE PROCEDURE IN ASTA CI SERVONO ALMENO 40 GIORNI! DESCRIZIONE IMMOBILE: MEDA (MB) – VIA TREVISO 13 Immobile posto al piano primo (secondo fuori terra). L’alloggio è composto da: ingresso, sogg […]
