Valutazione immobiliare indipendente, accurata e gratuita
Locale commerciale in vendita a Meda a 460.000 € (cod.64fb2a53)
Caasa non ha sufficienti informazioni per commentare il locale commerciale in vendita a Meda - 64fb2a53.
Analisi immobiliare
I dati in posseso di Caasa per quest'immobile sono insufficienti, inaffidabili o contraddittori per proporre un'analisi attendibile.
Mercato immobiliare a Meda
Per quanto riguarda più in generale la città di Meda, sono presenti al momento più di trenta annunci per
locali commerciali in vendita (meno del 5% dell'intera provincia) .
La dinamica dei prezzi in tutta la città mostra che negli ultimi 6 mesi, i prezzi per locali commerciali in vendita sono
in deciso calo (-8,82%).
NOVITÀ Il risultato che vedi dipende dai dati che siamo riusciti ad estrarre dall'annuncio: ottieni una stima più accuranta di questo immobile, inserendo dati più precisi.
N.B. L'Opinione di Caasa® è un servizio sperimentale realizzato tramite tecniche di Intelligenza Artificiale, fornito senza alcuna garanzia di correttezza e completezza. Leggi il disclaimer o segnalaci un problema.
IMMAGINI
IN SINTESI
DESCRIZIONE
con posto auto con termocondizionamento
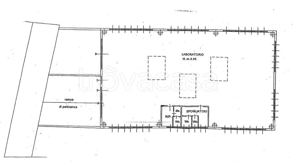
Luminoso e recentissimo CAPANNONE ARTIGIANALE di 500 mq. completo di impianto elettrico, luci e riscaldamento, ufficio, servizi igienici e spogliatoio. Consentite lavorazioni leggere. Doppio ingresso carraio e ribalta per carico/scarico. Altezza 4,50 metri. Parcheggio privato e piccola area pertinenziale. – 62 KWh/mc.a

