Valutazione immobiliare indipendente, accurata e gratuita
Appartamento in vendita a Lissone a 75.000 € (cod.65490a4c)
Caasa non ha sufficienti informazioni per commentare l'appartamento in vendita a Lissone - 65490a4c.
Analisi immobiliare
I dati in posseso di Caasa per quest'immobile sono insufficienti, inaffidabili o contraddittori per proporre un'analisi attendibile.
Mercato immobiliare a Lissone
Per quanto riguarda più in generale la città di Lissone, sono presenti al momento oltre 500 annunci per
appartamenti in vendita (meno del 10% dell'intera provincia)
e il maggior numero di annunci per questa tipologia sono relativi alla zona di Santa Margherita.
Per quanto riguarda la dinamica dei prezzi, negli ultimi 6 mesi i prezzi medi in tutta la città per appartamenti in vendita sono
in sostanziale aumento (+5,63%).
NOVITÀ Il risultato che vedi dipende dai dati che siamo riusciti ad estrarre dall'annuncio: ottieni una stima più accuranta di questo immobile, inserendo dati più precisi.
N.B. L'Opinione di Caasa® è un servizio sperimentale realizzato tramite tecniche di Intelligenza Artificiale, fornito senza alcuna garanzia di correttezza e completezza. Leggi il disclaimer o segnalaci un problema.
IMMAGINI
IN SINTESI
DESCRIZIONE
con posto auto con terrazza con cantina con angolo cottura in asta giudiziaria
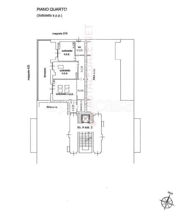
sottotetto non abitabile di mq. 57,60 Composto da: ingresso, servizio con doccia, soggiorno con angolo cottura, disimpegno, due camere, bagno con vasca, terrazzo e cantina al piano interrato. Completa la proprietà box singolo di 16 mq
