Valutazione immobiliare indipendente, accurata e gratuita
Appartamento in vendita a Lissone a 195.000 € (cod.6542d532)
Caasa non ha sufficienti informazioni per commentare l'appartamento in vendita a Lissone - 6542d532.
Analisi immobiliare
I dati in posseso di Caasa per quest'immobile sono insufficienti, inaffidabili o contraddittori per proporre un'analisi attendibile.
Mercato immobiliare a Lissone
Per quanto riguarda più in generale la città di Lissone, sono presenti al momento oltre 500 annunci per
appartamenti in vendita (meno del 10% dell'intera provincia)
e il maggior numero di annunci per questa tipologia sono relativi alla zona di Santa Margherita.
Possiamo inoltre considerare che in tutta la città negli ultimi 6 mesi, i prezzi per appartamenti in vendita sono
in sostanziale aumento (+5,63%).
NOVITÀ Il risultato che vedi dipende dai dati che siamo riusciti ad estrarre dall'annuncio: ottieni una stima più accuranta di questo immobile, inserendo dati più precisi.
N.B. L'Opinione di Caasa® è un servizio sperimentale realizzato tramite tecniche di Intelligenza Artificiale, fornito senza alcuna garanzia di correttezza e completezza. Leggi il disclaimer o segnalaci un problema.
IMMAGINI
IN SINTESI
PROPOSTO DA:
Tempocasa Corsica
DESCRIZIONE
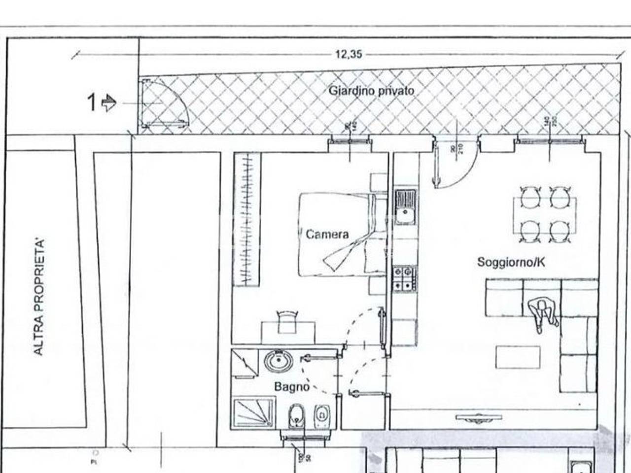
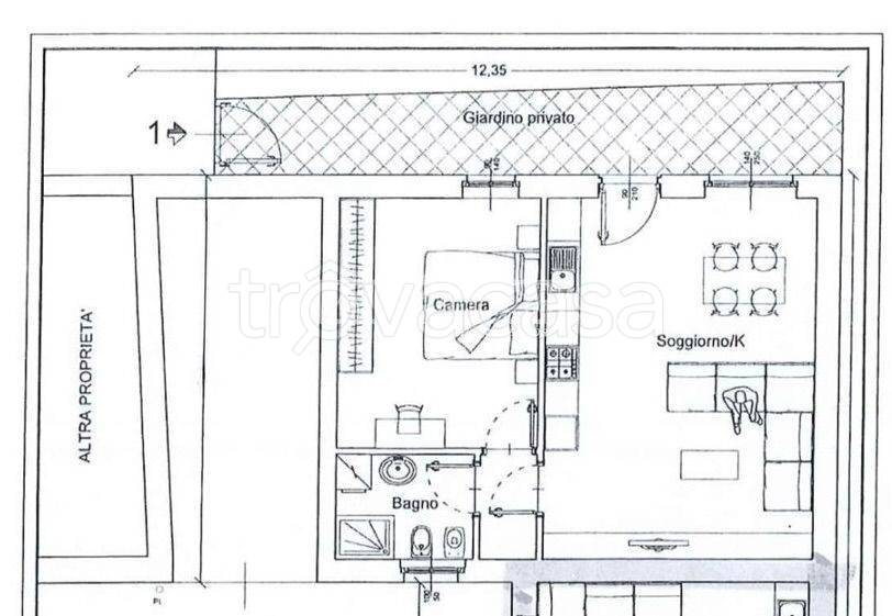
di nuova costruzione con posto auto di nuova costruzione con giardino con cortile
Rif: 001 - Sei alla ricerca di un appartamento realizzato a NUOVO? Desideri un GIARDINO PRIVATO? Tempoagency Lissone ti propone in vendita in esclusiva BILOCALE di 78mq in CENTRO LISSONE, precisamente in Via Assunta, a pochi passi dalle prime necessità, quali Farmacia, Poste, Scuole, SS36... L'unità immobiliare è parte di un contesto di cortile privo di spese condominiali, che verrà realizzato completamente a nuovo, ed è così disposta: ingresso indipendente dal giardino di proprietà direttamente sull'ampia zona giorno composta da living e cucina a vista. Il disimpegno porta alla zona notte, completa di bagno finestrato con sanitari sospesi e lavabo della Catalano serie new light, rubinetteria BM Principe miscelatori e a scelta piatto doccia o vasca Ideal Standard serie Connect, oltre alla camera da letto matrimoniale. La pavimentazione sarà parquet in bamboo colore champagne o carbonizzato, mentre nel bagno sarà un grés porcellanato. Gli infissi esterni saranno in pvc / doppio vetro camera, mentre i serramenti interni saranno in laminato bianco cieche. Sarà inoltre presente l'impianto di climatizzazione caldo/freddo con pompa di calore oltre al boiler elettrico con accumulo per acqua calda idro-sanitaria. La CONSEGNA è prevista per SETTEMBRE 2026 e vi è la possibilità di acquisto BOX ad Euro 20.000. COSA ASPETTI? Non perdere l'opportunità di visitare questa soluzione a Lissone. Contattaci oggi stesso per prenotare la tua visita e scoprire il tuo prossimo rifugio. Chiama ora al 0398872624 o scrivici alla mail lissone@tempoagency.it. Visita il nostro sito www.tempoagency.it per maggiori dettagli e per fissare un appuntamento! Valutazione Immobiliare Senza Impegno: Se desideri scoprire il valore del tuo immobile, siamo pronti a fornirti una valutazione gratuita! Consulenze di Mutuo Gratuite: Siamo qui per rendere più agevole il tuo percorso verso la casa dei tuoi sogni, offrendoti consulenze di mutuo gratuite con tassi agevolati



