Valutazione immobiliare indipendente, accurata e gratuita
L'Opinione di Caasa® per l'appartamento in vendita a Lissone a 355.000 € (cod.63faa2cf)
Secondo Caasa, per l'appartamento in vendita a Lissone, la richiesta di 355.000 € è leggermente vantaggiosa rispetto agli annunci simili.
Analisi immobiliare
L'appartamento è proposto in vendita (da i progetti) a
355.000 € per una
superficie commerciale di
117 m² e quindi ad un prezzo per metro quadrato pari a
3034 €/m²
.
Tale valore
è leggeremente più conveniente di quello stimato da Caasa per immobili in vendita simili per tipologia, caratteristiche e classe energetica, che è compreso tra
3.170 €/m² e
3.423 €/m².
Sono stati utilizzati nel raffronto i soli valori medi cittadini per appartamenti (da 1.905 €/m² a 3.125 €/m²) e per quadrivani (da 1.990 €/m² a 3.220 €/m²), visto che non è stato possibile determinare in modo affidabile la posizione dell'immobile. All'elaborazione della stima ha però contribuito anche la classe energetica (A+) oltre alla condizione dell'immobile (di nuova costruzione) e alla presenza di alcune caratteristiche significative come il garage. Per i motivi esposti i valori considerati accettabili per l'offerta costituiscono un intervallo comunque ampio.
Mercato immobiliare a Lissone
Per quanto riguarda più in generale la città di Lissone, sono presenti al momento circa mille annunci per
appartamenti in vendita (meno del 10% dell'intera provincia)
e il maggior numero di annunci per questa tipologia sono relativi alla zona di Santa Margherita.
La dinamica dei prezzi in tutta la città mostra che negli ultimi 6 mesi, i prezzi per appartamenti in vendita sono
in aumento (+4,94%).
NOVITÀ Il risultato che vedi dipende dai dati che siamo riusciti ad estrarre dall'annuncio: ottieni una stima più accuranta di questo immobile, inserendo dati più precisi.
N.B. L'Opinione di Caasa® è un servizio sperimentale realizzato tramite tecniche di Intelligenza Artificiale, fornito senza alcuna garanzia di correttezza e completezza. Leggi il disclaimer o segnalaci un problema.
IMMAGINI
IN SINTESI
DESCRIZIONE
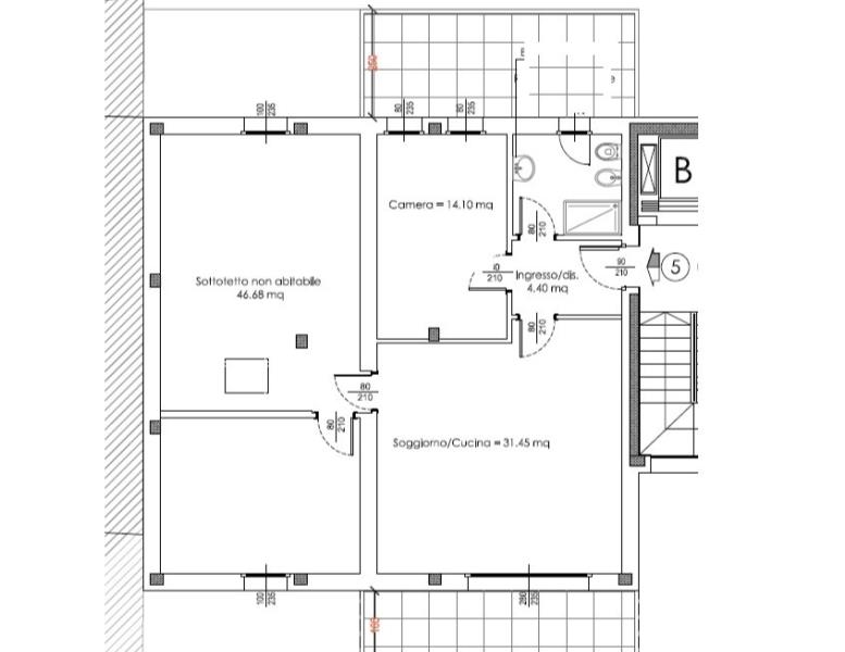
di nuova costruzione con posto auto con terrazza di nuova costruzione con balcone con garage
Particolare Appartamento di 3/4 vani con terrazzo e balcone Ampio 3/4 vani con terrazzo Prossima realizzazione consegna autunno 2026- Lissone Via XX Settembre : Particolare e ampia soluzione composta da Ingresso, ampio soggiorno cucina a vista,1 camera matrimoniale, 1 bagno, terrazzo e balcone coperto fronte e retro per mq 25 totali, disimpegno che collega sullo stesso piano a due ampi vani sottotetto finestrati dove poter ricavare due stanze e una lavanderia. Lissone nelle immediate vicinanze del centro sta sorgendo un nuovo piccolo complesso residenziale esclusivo costituito da due eleganti mini-palazzine. Il Progetto prevede un totale di 12 appartamenti progettati per garantire comfort e qualità abitativa e N. 12 Box doppi a Euro 30.000 cad. e posti auto coperti singoli a euro 15.000 cad.. Le unità abitative saranno dotate di finiture moderne e personalizzabili, con luminosi spazi e ben distribuiti. tra le opzioni disponibili vi saranno appartamenti di varie metrature di 2/3/4 locali con balconi, terrazzini e giardini privati. Il complesso sarà inserito in un contesto tranquillo ma strategico grazie alla vicinanza al centro e principali servizi quali scuole, trasporti pubblici e aree verdi. E' inoltre prevista un'attenzione particolare alla sostenibilità con impianti di ultima generazione e soluzioni per il risparmio energetico. Se desiderate ulteriori specifiche su questo progetto siamo disponibili per incontri presso il nostro studio al fine di fornirvi ogni ulteriore informazione aggiuntiva


