Valutazione immobiliare indipendente, accurata e gratuita

Appartamento in vendita a Limbiate a 240.000 € (cod.64ee7aea)

Caasa non ha sufficienti informazioni per commentare l'appartamento in vendita a Limbiate - 64ee7aea.

Analisi immobiliare
I dati in posseso di Caasa per quest'immobile sono insufficienti, inaffidabili o contraddittori per proporre un'analisi attendibile.
Mercato immobiliare a Limbiate
Per quanto riguarda più in generale la città di Limbiate, sono presenti al momento oltre 500 annunci per appartamenti in vendita (meno del 5% dell'intera provincia) e il maggior numero di annunci per questa tipologia sono relativi alla zona di Villaggio del Sole.

Possiamo inoltre considerare che in tutta la città negli ultimi 6 mesi, i prezzi per appartamenti in vendita sono in deciso aumento (+9,11%).

NOVITÀ Il risultato che vedi dipende dai dati che siamo riusciti ad estrarre dall'annuncio: ottieni una stima più accuranta di questo immobile, inserendo dati più precisi.

N.B. L'Opinione di Caasa® è un servizio sperimentale realizzato tramite tecniche di Intelligenza Artificiale, fornito senza alcuna garanzia di correttezza e completezza. Leggi il disclaimer o segnalaci un problema.

IMMAGINI

IN SINTESI

Prezzo:
240.000 €
Superficie:
99 m²
Prezzo al m²:
2424 €/m²
Piano:
Bagni:
n.d.
Classe energetica:
n.d.
IPE:
29.5 kwh/m²
Città:
Limbiate (MB)
Zona OMI:
B1 (CENTRO URBANO)
Indirizzo:
Pubblicato:
mer 8 ottobre 2025

PROPOSTO DA:

Mister House Limbiate

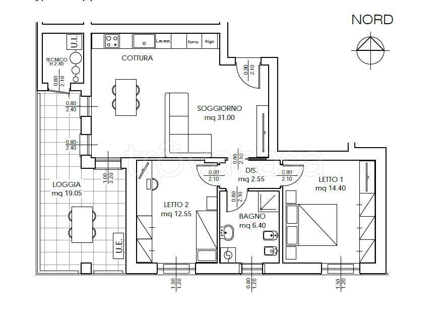
DESCRIZIONE

di nuova costruzione con cantina con terrazza con posto auto con termocondizionamento con riscaldamento autonomo di nuova costruzione

In bellissima ed esclusiva palazzina IN CLASSE A di NUOVA COSTRUZIONE di sole 10 unità abitative, in tranquilla zona residenziale e riservata ma ben servita da mezzi e servizi proponiamo appartamento sito al piano primo di 3 locali con TERRAZZO, composto da: ingresso, soggiorno con cucina vista di 31 mq, disimpegno, due camere da letto, bagno, locale tecnico per la gestione degli impianti/ripostiglio e TERRAZZO COPERTO di 19 MQ! Possibilità acquisto box e posti auto Riscaldamento autonomo a pavimento con POMPA DI CALORE SINGOLA per ogni unità immobiliare alimentata da pannelli fotovoltaici esclusivi per ogni appartamento, tapparelle motorizzate, predisposizione aria condizionata ed antifurto. VMC ventilazione meccanica controllata per il ricircolo dell'aria per un ottimo comfort abitativo. In fase di costruzione possibilità modifiche interne e personalizzazioni con SCELTA DELLE FINITURE E DEL CAPITOLATO. Disponibili altre tipologie di appartamenti di 3 o 4 locali, su diversi piani e metratura! MAGGIORI INFORMAZIONI IN UFFICIO! Studio immobiliare Mister House di Limbiate cell. 393/8260816 tel. 0299692265 limbiate@misterhouse.it

  • immobiliare.it
  • trovacasa.net