Valutazione immobiliare indipendente, accurata e gratuita
Appartamento in vendita a Limbiate a 300.000 € (cod.64ee7ae8)
Caasa non ha sufficienti informazioni per commentare l'appartamento in vendita a Limbiate - 64ee7ae8.
Analisi immobiliare
I dati in posseso di Caasa per quest'immobile sono insufficienti, inaffidabili o contraddittori per proporre un'analisi attendibile.
Mercato immobiliare a Limbiate
Per quanto riguarda più in generale la città di Limbiate, sono presenti al momento oltre 500 annunci per
appartamenti in vendita (meno del 5% dell'intera provincia)
e il maggior numero di annunci per questa tipologia sono relativi alla zona di Villaggio del Sole.
Per quanto riguarda la dinamica dei prezzi, negli ultimi 6 mesi i prezzi medi in tutta la città per appartamenti in vendita sono
in sostanziale aumento (+5,03%).
NOVITÀ Il risultato che vedi dipende dai dati che siamo riusciti ad estrarre dall'annuncio: ottieni una stima più accuranta di questo immobile, inserendo dati più precisi.
N.B. L'Opinione di Caasa® è un servizio sperimentale realizzato tramite tecniche di Intelligenza Artificiale, fornito senza alcuna garanzia di correttezza e completezza. Leggi il disclaimer o segnalaci un problema.
IMMAGINI
IN SINTESI
PROPOSTO DA:
Mister House Limbiate
DESCRIZIONE
di nuova costruzione con cantina con terrazza con posto auto con termocondizionamento di nuova costruzione con riscaldamento autonomo con angolo cottura
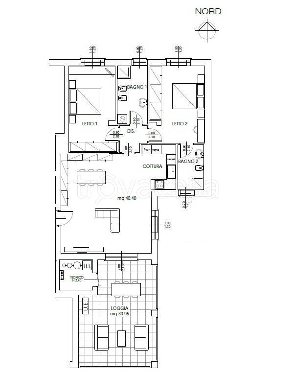
ULTIMI 3 APPARTAMENTI - 3 LOCALI - TERRAZZO COPERTO di 31 MQ - NUOVA COSTRUZIONE CLASSE A - COMFORT ENERGETICO e ABITATIVO - RISCALDAMENTO A PAVIMENTO - POMPA DI CALORE ELETTRICA AUTONOMA - PANNELLI FOTOVOLTAICI - VMC - SCELTA DEL CAPITOLATO e FINITURE INTERNE Il progetto si sviluppa per il massimo comfort abitativo dal design moderno al massimo risparmio energetico, con spazi interni distribuiti, progettati e dotato di tecnologie all’avanguardia per vivere al meglio, e in fase di avanzamento lavori con ultimi 3 appartamenti rimasti con la realizzazione di 10 unità abitative. Appartamento di 3 locali sito al piano secondo con TERRAZZO, composto da: ingresso, ampio open space di 40 mq con soggiorno e angolo cottura che affacciano su bellissimo TERRAZZO COPERTO di 30,95 MQ esposto a sud/est, disimpegno, due camere da letto matrimoniali, due bagni entrambi finestrati di cui uno padronale riservato alla camera, locale tecnico per la gestione degli impianti/ripostiglio! Possibilità acquisto box e posti auto interni. Riscaldamento autonomo a pavimento con POMPA DI CALORE SINGOLA per ogni unità immobiliare alimentata da pannelli fotovoltaici, tapparelle motorizzate, predisposizione aria condizionata ed antifurto. VMC ventilazione meccanica controllata per il ricircolo dell'aria per un ottimo comfort abitativo. In fase di costruzione possibilità modifiche interne e personalizzazioni con SCELTA DELLE FINITURE E DEL CAPITOLATO. Disponibili altre due tipologie di appartamenti di 3 o 4 locali, su diversi piani e metratura! MAGGIORI INFORMAZIONI IN UFFICIO! Studio immobiliare Mister House di Limbiate cell. 393/8260816 tel. 0299692265 limbiate@misterhouse.it


