Valutazione immobiliare indipendente, accurata e gratuita

L'Opinione di Caasa® per l'appartamento in vendita a Limbiate a 300.000 € (cod.64eaafec)

Secondo Caasa, per l'appartamento in vendita a Limbiate, la richiesta di 300.000 € è significativamente svantaggiosa rispetto agli annunci simili.

Analisi immobiliare
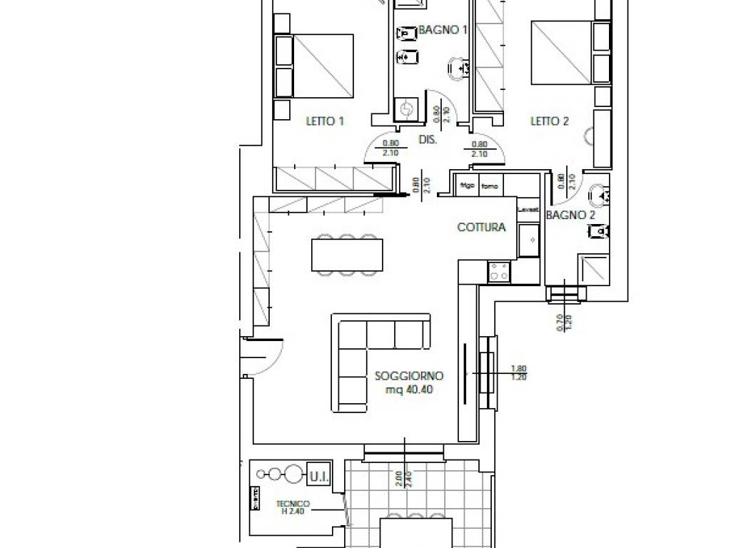
L'appartamento, situato nella zona OMI B1, è proposto in vendita a 300.000 € per una superficie commerciale di 128 m² e quindi ad un prezzo per metro quadrato pari a 2343 €/m² .
Questo valore è significativamente più alto di quello stimato da Caasa per immobili in vendita simili per tipologia e caratteristiche e localizzati nella stessa zona OMI, che è compreso tra 1.978 €/m² e 2.114 €/m². Grazie alla conoscenza con buona approssimazione della localizzazione dell'immobile, è stato possibile utilizzare come raffronto i dati medi elaborati esattamente nella zona OMI di appertenenza (CENTRO URBANO). Anche se Caasa non è riuscita a determinare la classe energetica, ad affinare la stima ha contribuito anche lo stato dell'immobile (di nuova costruzione). In virtù di queste considerazioni l'intervallo dei valori accettabili per l'offerta è relativamente limitato.

Mercato immobiliare a Limbiate
Per quanto riguarda più in generale la città di Limbiate, sono presenti al momento oltre 500 annunci per appartamenti in vendita (meno del 5% dell'intera provincia) e il maggior numero di annunci per questa tipologia sono relativi alla zona di Villaggio del Sole.

Per quanto riguarda la dinamica dei prezzi, negli ultimi 6 mesi i prezzi medi in tutta la città per appartamenti in vendita sono in deciso aumento (+9,11%).

NOVITÀ Il risultato che vedi dipende dai dati che siamo riusciti ad estrarre dall'annuncio: ottieni una stima più accuranta di questo immobile, inserendo dati più precisi.

N.B. L'Opinione di Caasa® è un servizio sperimentale realizzato tramite tecniche di Intelligenza Artificiale, fornito senza alcuna garanzia di correttezza e completezza. Leggi il disclaimer o segnalaci un problema.

IMMAGINI

IN SINTESI

Prezzo:
300.000 €
Superficie:
128 m²
Prezzo al m²:
2343 €/m²
Piano:
Bagni:
2
Classe energetica:
n.d.
Città:
Limbiate (MB)
Zona OMI:
B1 (CENTRO URBANO)
Indirizzo:
Pubblicato:
mer 8 ottobre 2025

PROPOSTO DA:

Mister House Limbiate

DESCRIZIONE

di nuova costruzione di nuova costruzione

In bellissima ed esclusiva palazzina IN CLASSE A di NUOVA COSTRUZIONE di sole 10 unità abitative, in tranquilla zona residenziale e riservata ma ben servita da mezzi e servizi proponiamo appartamento

  • immobiliare.it