Valutazione immobiliare indipendente, accurata e gratuita
L'Opinione di Caasa® per l'appartamento in vendita a Lentate sul Seveso in zona Camnago a 295.000 € (cod.658f01f3)
Secondo Caasa, per l'appartamento a Lentate sul Seveso in zona Camnago, la richiesta di 295.000 € è significativamente vantaggiosa rispetto agli annunci simili.
Analisi immobiliare
L'appartamento, situato nella zona OMI D1, è proposto in vendita a
295.000 € per una
superficie commerciale di
120 m² e quindi ad un prezzo per metro quadrato pari a
2458 €/m²
.
Tale valore
è decisamente inferiore a quello stimato da Caasa per immobili in vendita simili per tipologia, caratteristiche, classe energetica e localizzati nella stessa zona OMI, che è compreso tra
3.189 €/m² e
3.415 €/m².
La conoscenza con buona approssimazione della localizzazione dell'immobile ha consentito di utilizzare come raffronto i dati medi elaborati esattamente nella zona OMI di appertenenza (PERIFERIA) per appartamenti (da 1.750 €/m² a 2.795 €/m²) e per mansarde (da 1.995 €/m² a 2.860 €/m²). Inoltre, Caasa ha potuto affinare la stima anche con la conoscenza della classe energetica (A+) oltre che dello stato dell'immobile (di nuova costruzione) e di alcune caratteristiche significative come il posto auto, la disponibilità di una cantina o la presenza dell'ascensore. Per i motivi esposti i valori accettabili per l'offerta costituiscono un intervallo abbastanza limitato.
Mercato immobiliare a Lentate sul Seveso
Per quanto riguarda più in generale la città di Lentate sul Seveso, sono presenti al momento più di 200 annunci per
appartamenti in vendita (meno del 5% dell'intera provincia)
e il maggior numero di annunci per questa tipologia sono relativi proprio alla zona di Camnago.
Per quanto riguarda la richiesta media in zona Camnago, dove sorge l'appartamento, essa è pari a circa
2.320 €/m² per appartamenti in vendita.
La dinamica dei prezzi in tutta la città mostra che negli ultimi 6 mesi, i prezzi per appartamenti in vendita sono
in deciso aumento (+8,19%).
NOVITÀ Il risultato che vedi dipende dai dati che siamo riusciti ad estrarre dall'annuncio: ottieni una stima più accuranta di questo immobile, inserendo dati più precisi.
N.B. L'Opinione di Caasa® è un servizio sperimentale realizzato tramite tecniche di Intelligenza Artificiale, fornito senza alcuna garanzia di correttezza e completezza. Leggi il disclaimer o segnalaci un problema.
IMMAGINI
IN SINTESI
DESCRIZIONE
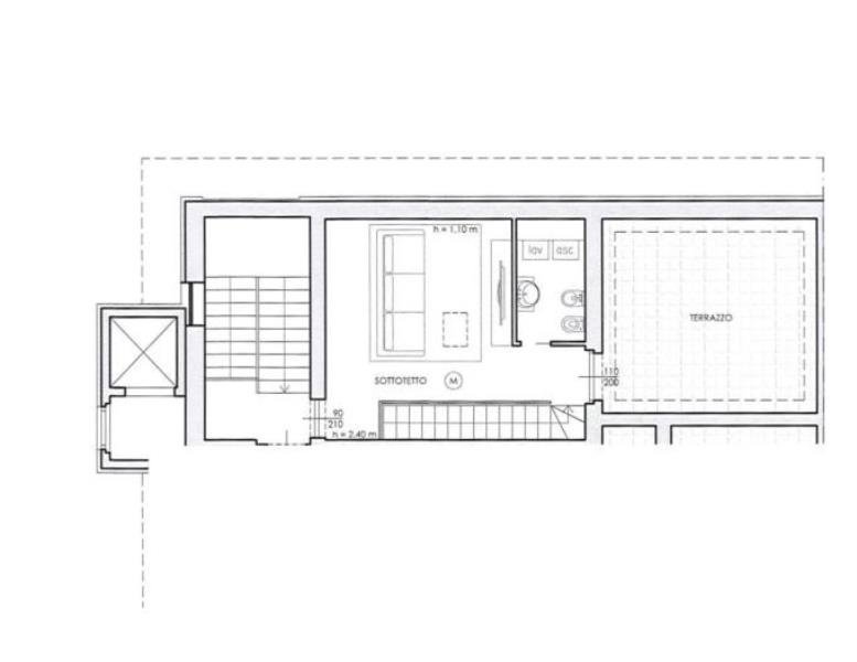
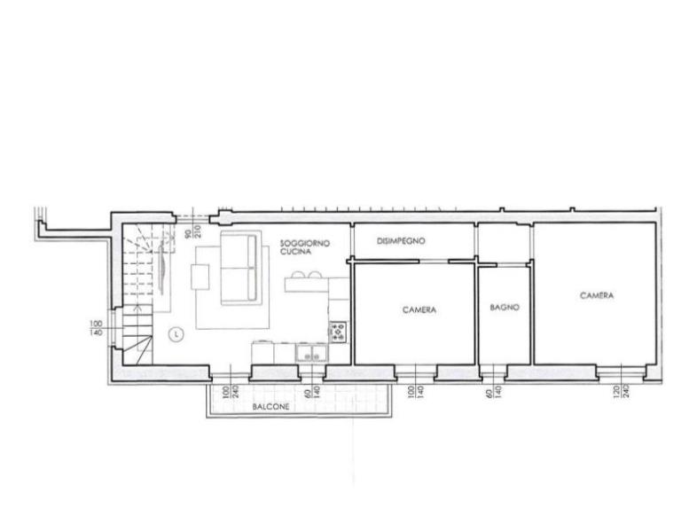
di nuova costruzione con posto auto con terrazza con balcone con cantina di nuova costruzione con termocondizionamento con ascensore
In zona verde e residenziale, poco distante dalla stazione di Lentet-Camnago e sul confine con Meda, proponiamo all'interno di una palazzina di sole 12 unità di nuova costruzione in splendido duplex posto al secondo piano. L'immobile è raggiungibile tramite ascensore e al suo interno troviamo una luminosa zona giorno servita da balcone, due camere da letto ed un bagno al piano. Una comoda scala interna conduce al piano superiore mansardato con travi in legno a vista dove troviamo un ambiente spazioso e accessoriato di riservato terrazzo dove è possibile creare o la terza camera da letto o un funzionale locale hobby/salottino ed un bagno-lavanderia. L'immobile vanta una vista panoramica sul territorio circostante. La costruzione è realizzata con materiali di alta qualità e secondo tutti i criteri di risparmio energetico, prevede riscaldamento a pavimento con caldaia centralizzata a pompa di calore alimentata da pannelli fotovoltaici per garantire comfort abitativo ed efficienza energetica. Predisposizione impianto di antifurto e aria condizionata. Possibilità di personalizzare gli interni. Box doppio € 30.000,00 Box singolo € 15.000,00 Posto auto € 5.000,00 Cantine € 3.000,00 Consegna prevista maggio 2026


