Valutazione immobiliare indipendente, accurata e gratuita
Appartamento in vendita a Desio a 153.000 € (cod.656de694)
Caasa non ha sufficienti informazioni per commentare l'appartamento in vendita a Desio - 656de694.
Analisi immobiliare
I dati in posseso di Caasa per quest'immobile sono insufficienti, inaffidabili o contraddittori per proporre un'analisi attendibile.
Mercato immobiliare a Desio
Per quanto riguarda più in generale la città di Desio, sono presenti al momento quasi 500 annunci per
appartamenti in vendita (meno del 5% dell'intera provincia) .
Per quanto riguarda la dinamica dei prezzi, negli ultimi 6 mesi i prezzi medi in tutta la città per appartamenti in vendita sono
in leggero aumento (+2,86%).
NOVITÀ Il risultato che vedi dipende dai dati che siamo riusciti ad estrarre dall'annuncio: ottieni una stima più accuranta di questo immobile, inserendo dati più precisi.
N.B. L'Opinione di Caasa® è un servizio sperimentale realizzato tramite tecniche di Intelligenza Artificiale, fornito senza alcuna garanzia di correttezza e completezza. Leggi il disclaimer o segnalaci un problema.
IMMAGINI
IN SINTESI
DESCRIZIONE
di nuova costruzione con termocondizionamento di recente ristrutturazione di nuova costruzione con climatizzazione
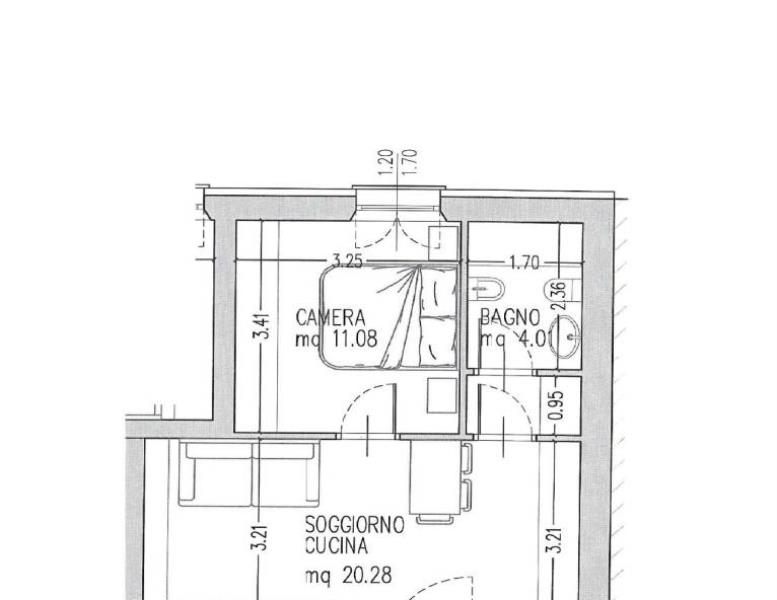
DESIO Adiacenze centro, servito da negozi e mezzi pubblici - proponiamo in una porzione di corte completamente ristrutturata a nuovo Bilocale posto al piano terra di mq 50, composto da soggiorno con parete cottura, camera da letto e bagno. Pavimenti in gres - serramenti in PVC triplo vetro, tapparelle motorizzate - riscaldamento a pavimento e raffrescamento con split impianto pompa di calore - pannelli fotovoltaici - cappotto in facciata di 12 cm - porta blindata - CONSEGNA PER OTTOBRE 2025 - possibilità di altre tipologie e/o metrature - Possibilità di Box


