Valutazione immobiliare indipendente, accurata e gratuita
Appartamento in vendita a Concorezzo a 114.750 € (cod.6517930b)
Caasa non ha sufficienti informazioni per commentare l'appartamento in vendita a Concorezzo - 6517930b.
Analisi immobiliare
I dati in posseso di Caasa per quest'immobile sono insufficienti, inaffidabili o contraddittori per proporre un'analisi attendibile.
Mercato immobiliare a Concorezzo
Per quanto riguarda più in generale la città di Concorezzo, sono presenti al momento più di 200 annunci per
appartamenti in vendita (meno del 5% dell'intera provincia) .
La dinamica dei prezzi in tutta la città mostra che negli ultimi 6 mesi, i prezzi per appartamenti in vendita sono
in leggero aumento (+2,35%).
NOVITÀ Il risultato che vedi dipende dai dati che siamo riusciti ad estrarre dall'annuncio: ottieni una stima più accuranta di questo immobile, inserendo dati più precisi.
N.B. L'Opinione di Caasa® è un servizio sperimentale realizzato tramite tecniche di Intelligenza Artificiale, fornito senza alcuna garanzia di correttezza e completezza. Leggi il disclaimer o segnalaci un problema.
IMMAGINI
IN SINTESI
DESCRIZIONE
di recente ristrutturazione con cantina con terrazza di recente ristrutturazione in asta giudiziaria
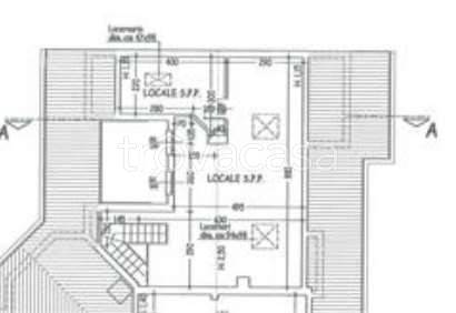
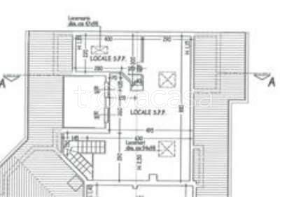
appartamento di mq. 102, monolocale open-space, sito al piano primo con servizio igienico e terrazzo oltre a sovrastante sottotetto , collegato mediante scala interna. cantina al piano interrato. IMMOBILE ALL ASTA, contattaci per fissare una prima co […]
