Valutazione immobiliare indipendente, accurata e gratuita
L'Opinione di Caasa® per l'appartamento in vendita a Cesano Maderno a 175.000 € (cod.6542c30c)
Secondo Caasa, per l'appartamento in vendita a Cesano Maderno, la richiesta di 175.000 € è significativamente vantaggiosa rispetto agli annunci simili.
Analisi immobiliare
L'appartamento, situato nella zona OMI D1, è proposto in vendita a
175.000 € per una
superficie commerciale di
75 m² e quindi ad un prezzo per metro quadrato pari a
2333 €/m²
.
Questo valore
è significativamente più basso di quello stimato da Caasa per immobili in vendita simili per tipologia, caratteristiche, classe energetica e localizzati nella stessa zona OMI, che è compreso tra
2.955 €/m² e
3.137 €/m².
La conoscenza con buona approssimazione della localizzazione dell'immobile ha consentito di utilizzare come raffronto i dati medi elaborati esattamente nella zona OMI di appertenenza (PERIFERIA). Inoltre, Caasa ha potuto affinare la stima anche con la conoscenza della classe energetica (B) oltre che dello stato dell'immobile (di nuova costruzione) e di alcune caratteristiche significative come il posto auto. Per queste considerazioni è possibile considerare un intervallo di valori accettabili per l'offerta abbastanza limitato.
Mercato immobiliare a Cesano Maderno
Per quanto riguarda più in generale la città di Cesano Maderno, sono presenti al momento circa mille annunci per
appartamenti in vendita (meno del 10% dell'intera provincia)
e il maggior numero di annunci per questa tipologia sono relativi alla zona di Binzago.
Per quanto riguarda la dinamica dei prezzi, negli ultimi 6 mesi i prezzi medi in tutta la città per appartamenti in vendita sono
in leggero aumento (+2,50%).
NOVITÀ Il risultato che vedi dipende dai dati che siamo riusciti ad estrarre dall'annuncio: ottieni una stima più accuranta di questo immobile, inserendo dati più precisi.
N.B. L'Opinione di Caasa® è un servizio sperimentale realizzato tramite tecniche di Intelligenza Artificiale, fornito senza alcuna garanzia di correttezza e completezza. Leggi il disclaimer o segnalaci un problema.
IMMAGINI
IN SINTESI
DESCRIZIONE
di nuova costruzione di nuova costruzione con posto auto con terrazza con termocondizionamento con balcone con giardino
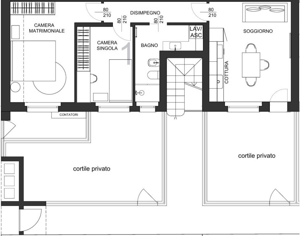
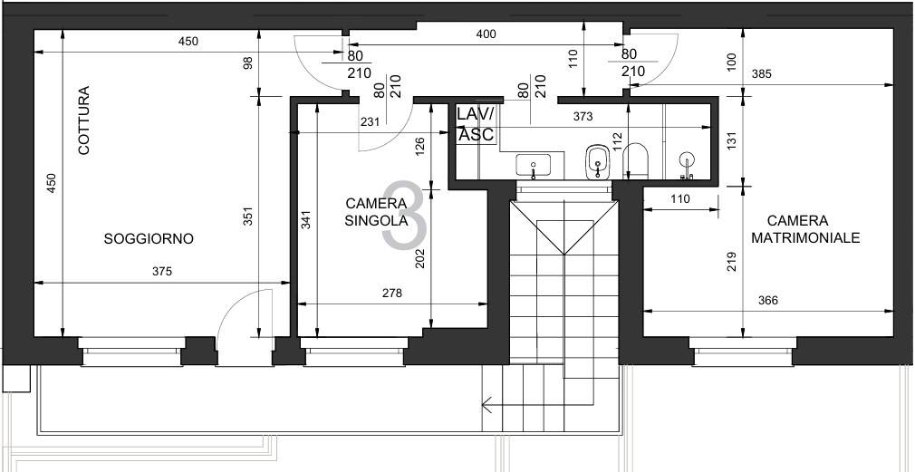
In zona strategica di Cesano Maderno, COMODA con centro e stazione, nasce un esclusivo intervento di RIQUALIFICAZIONE completa in fase di ultimazione, reinterpretata in chiave MODERNA e funzionale con possibilità di posti auto privati. Il progetto prevede la realizzazione di quattro appartamenti INDIPENDENTI di circa 70 mq l'uno, tutti completamente rinnovati e consegna CHIAVI IN MANO, senza alcuna spesa condominiale. Le soluzioni si dividono in due tipologie: Tipologia A (piano primo) che prevede due appartamenti con balcone e scala privati, sono rispettivamente composti da soggiorno con cucina a vista e da un disimpegno che conduce rispettivamente al bagno con box doccia, alla cameretta e ad una SPAZIOSA camera matrimoniale. Tipologia B (piano terra) che prevede due appartamenti con accessi indipendenti e dal taglio similare agli appartamenti soprastanti, impreziositi da un BEL GIARDINO PRIVATO e RISERVATO, rispettivamente il primo di 40 MQ ed il secondo di 55 MQ, ideale per momenti di convivialità e in compagnia. Finiture e dotazioni: • Riscaldamento a pavimento di ULTIMA GENERAZIONE collegato a caldaia a condensazione, oltre tutta l'impiantistica NUOVA • Pavimenti in gres porcellanato effetto legno e porte moderne • Serramenti e persiane in PVC con doppio vetro (zero manutenzione) • Facciate e tetto completamente rifatti • Predisposizione climatizzazione ed antifurto • Totale assenza di spese condominiali. Soluzioni ideali per chi cerca un appartamento NUOVO, MODERNO e indipendente, in contesto riservato ma SERVITISSIMO, a due passi dal centro e dalla stazione. Vi è la possibilità di acquisto di POSTI AUTO PRIVATI all'interno del contesto ad euro 10.000, COMODISSIMI per la posizione in cui sono situati. Le informazioni e le immagini contenute non costituiscono elemento contrattuale. CHIAMATE E FISSATE IL VOSTRO ACQUISTO

