Valutazione immobiliare indipendente, accurata e gratuita
L'Opinione di Caasa® per l'appartamento in vendita a Cesano Maderno a 408.000 € (cod.652c10e4)
Secondo Caasa, per l'appartamento in vendita a Cesano Maderno, la richiesta di 408.000 € è equilibrata rispetto agli annunci simili.
Analisi immobiliare
L'appartamento, situato nella zona OMI B1, è proposto in vendita a
408.000 € per una
superficie commerciale di
124 m² e quindi ad un prezzo per metro quadrato pari a
3290 €/m²
.
Questo valore
è molto vicino a quello stimato da Caasa per immobili in vendita simili per tipologia, caratteristiche, classe energetica e localizzati nella stessa zona OMI, che è compreso tra
3.143 €/m² e
3.343 €/m².
La conoscenza con buona approssimazione della localizzazione dell'immobile ha consentito di utilizzare come raffronto i dati medi elaborati esattamente nella zona OMI di appertenenza (CENTRO URBANO). Inoltre, Caasa ha potuto affinare la stima anche con la conoscenza della classe energetica (A+) oltre che dello stato dell'immobile (di nuova costruzione) e di alcune caratteristiche significative come la disponibilità di una cantina o il posto auto. Per queste considerazioni è possibile considerare un intervallo di valori accettabili per l'offerta abbastanza limitato.
Mercato immobiliare a Cesano Maderno
Per quanto riguarda più in generale la città di Cesano Maderno, sono presenti al momento oltre 500 annunci per
appartamenti in vendita (meno del 10% dell'intera provincia)
e il maggior numero di annunci per questa tipologia sono relativi alla zona di Binzago.
Per quanto riguarda la dinamica dei prezzi, negli ultimi 6 mesi i prezzi medi in tutta la città per appartamenti in vendita sono
in deciso aumento (+9,02%).
NOVITÀ Il risultato che vedi dipende dai dati che siamo riusciti ad estrarre dall'annuncio: ottieni una stima più accuranta di questo immobile, inserendo dati più precisi.
N.B. L'Opinione di Caasa® è un servizio sperimentale realizzato tramite tecniche di Intelligenza Artificiale, fornito senza alcuna garanzia di correttezza e completezza. Leggi il disclaimer o segnalaci un problema.
IMMAGINI
IN SINTESI
PROPOSTO DA:
IMMOBILIARE PIANELLO II S.R.L.
DESCRIZIONE
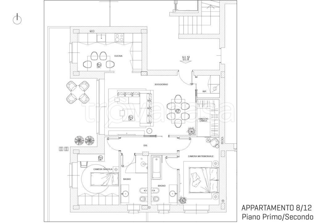
di nuova costruzione di nuova costruzione con posto auto con cantina con cucina abitabile
Rif. T27 A Cesano Maderno‚ nel tranquillo e apprezzato quartiere Sacra Famiglia‚ a pochi passi dal verde e dalla tranquillità del Parco Collodi‚ sta nascendo una nuova residenza moderna in in fase di completamento con consegna a breve. Il complesso offre diverse soluzioni abitative progettate per assicurare comfort‚ efficienza energetica e una piacevole qualità di vita. In vendita un ampio trilocale al primo piano di 105 mq‚ composto da ingresso su una zona giorno luminosa‚ cucina abitabile‚ camera matrimoniale con cabina armadio‚ camera singola e doppi servizi. L’appartamento è completato da un terrazzo coperto di 37 mq‚ accessibile dalla zona giorno‚ dalla cucina e da una delle camere‚ perfetto per vivere momenti all’aperto in totale privacy. Cantina inclusa nel prezzo‚ con possibilità di acquistare un box auto L'indirizzo è relativo al nostro ufficio. (La presente scheda non costituisce forma di contratto‚ le informazioni qui contenute sono da ritenersi del tutto indicative e non potranno essere utilizzate come parte integrante di un eventuale contratto di vendita. Inoltre non vincola in alcun modo la societ

