Valutazione immobiliare indipendente, accurata e gratuita
Appartamento in vendita a Bovisio-Masciago a 280.200 € (cod.64fe7e3a)
Caasa non ha sufficienti informazioni per commentare l'appartamento in vendita a Bovisio-Masciago - 64fe7e3a.
Analisi immobiliare
I dati in posseso di Caasa per quest'immobile sono insufficienti, inaffidabili o contraddittori per proporre un'analisi attendibile.
Mercato immobiliare a Bovisio-Masciago
Per quanto riguarda più in generale la città di Bovisio-Masciago, sono presenti al momento più di 300 annunci per
appartamenti in vendita (meno del 5% dell'intera provincia) .
Possiamo inoltre considerare che in tutta la città negli ultimi 6 mesi, i prezzi per appartamenti in vendita sono
in forte aumento (+10,94%).
NOVITÀ Il risultato che vedi dipende dai dati che siamo riusciti ad estrarre dall'annuncio: ottieni una stima più accuranta di questo immobile, inserendo dati più precisi.
N.B. L'Opinione di Caasa® è un servizio sperimentale realizzato tramite tecniche di Intelligenza Artificiale, fornito senza alcuna garanzia di correttezza e completezza. Leggi il disclaimer o segnalaci un problema.
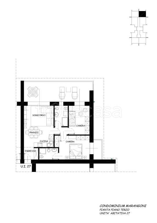
IMMAGINI
IN SINTESI
PROPOSTO DA:
STUDIO IMMOBILIARE MAURIZIO MARTINI
DESCRIZIONE
di nuova costruzione con cantina con posto auto con terrazza di nuova costruzione con balcone con termocondizionamento con giardino con garage con ascensore
Bovisio Masciago - Via Marangoni, VENDESI IN ESCLUSIVA, Residenza di nuova realizzazione in . Il piano di lottizzazione prevede la riqualificazione totale della zona con creazione di una nuova viabilità pedonale e veicolare, oltre parcheggi e aree verdi attrezzate. La Residenza, costituita da N. 3 corpi di fabbrica, è ubicata in zona centrale del paese, nelle immediate vicinanze delle ferrovie nord e di tutti i servizi di primaria necessità, comprese scuole e asili. La Palazzina, munita di ascensore in assenza di barriere architettoniche, verrà realizzata con le ultimissime tecniche costruttive nel pieno rispetto delle recenti normative antisismiche e nel pieno rispetto del contenimento energetico. Facciate in mattoni faccia a vista S. Anselmo color grigio tortora abbinate a parapetti in cemento martellinato garantendo un’estetica elegante e contemporanea. Impianto di riscaldamento a pavimento a gestione autonoma, centrale termica in pompa di calore elettrica con integrazione di impianto fotovoltaico. Ogni appartamento sarà dotato di sistema di ventilazione meccanica controllata WMC, predisposizione dell'aria condizionata in tutti i locali, serramenti in PVC con tripla guarnizione di battuta ad altissime prestazioni termo acustiche, tapparelle motorizzate in alluminio coibentato con monoblocco anch’esso a tenuta termico acustica, portoncino d'ingresso blindato, impianto elettrico BTicino serie "Living Now”, videocitofono e predisposizione aria condizionata in tutti gli ambienti. L’impianto fotovoltaico, a servizio delle parti comuni, permetterà una netta riduzione dei costi condominiali. Le finiture interne quali pavimenti, rivestimenti, porte interne, sanitari e rubinetterie di design, verranno posati su indicazione dell'acquirente in funzione della dotazione progettuale così come da capitolato delle opere. Proponiamo appartamenti di 2-3-4 locali che si sviluppano in piano terra con giardini privati, piani primo-secondo-terzo con splendidi terrazzi loggiati per un totale di 3 uffici e 29 abitazioni oltre[…]

