Valutazione immobiliare indipendente, accurata e gratuita
L'Opinione di Caasa® per l'appartamento in vendita a Bernareggio a 285.000 € (cod.659405a2)
Secondo Caasa, per l'appartamento in vendita a Bernareggio, la richiesta di 285.000 € è leggermente vantaggiosa rispetto agli annunci simili.
Analisi immobiliare
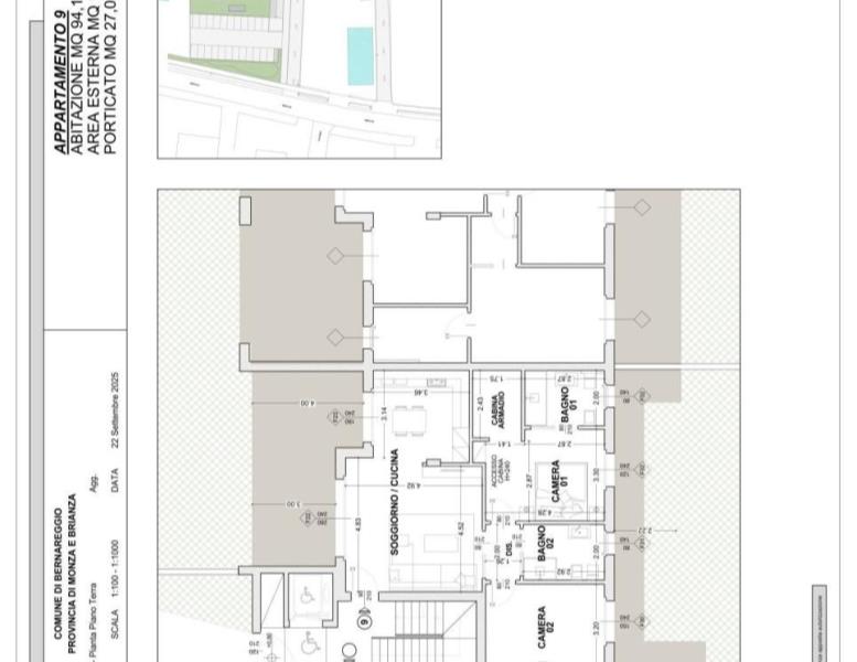
L'appartamento, situato nella zona OMI D1, è proposto in vendita a
285.000 € per una
superficie commerciale di
94 m² e quindi ad un prezzo per metro quadrato pari a
3031 €/m²
.
Questo prezzo
è di poco inferiore a quello stimato da Caasa per immobili in vendita simili per tipologia, caratteristiche, classe energetica e zona, che è compreso tra
3.258 €/m² e
3.470 €/m².
Data la posizione dell'appartamento si sono utilizzati in raffronto i valori medi nelle zone limitrofe . Ad affinare la stima ha contribuito anche la classe energetica (A+) oltre alla conoscenza dello stato dell'immobile (di nuova costruzione) e di alcune caratteristiche significative come il posto auto. Per questi motivi è possibile ottenere un intervallo di valori accettabili per l'offerta relativamente limitato.
Mercato immobiliare a Bernareggio
Per quanto riguarda più in generale il comune di Bernareggio, sono presenti al momento più di 200 annunci per
appartamenti in vendita (meno del 5% dell'intera provincia) .
Possiamo inoltre considerare che in tutto il comune negli ultimi 6 mesi, i prezzi per appartamenti in vendita sono
in sostanziale aumento (+6,19%).
NOVITÀ Il risultato che vedi dipende dai dati che siamo riusciti ad estrarre dall'annuncio: ottieni una stima più accuranta di questo immobile, inserendo dati più precisi.
N.B. L'Opinione di Caasa® è un servizio sperimentale realizzato tramite tecniche di Intelligenza Artificiale, fornito senza alcuna garanzia di correttezza e completezza. Leggi il disclaimer o segnalaci un problema.
IMMAGINI
IN SINTESI
DESCRIZIONE
di nuova costruzione con posto auto con giardino con termocondizionamento di nuova costruzione con cucina abitabile
Bernareggio - In prestigiosa minipalazzina disponiamo di elegante appartamento ubicato al piano terra con giardino privato di 175 mq. L'immobile in oggetto è composto da 3 locali, doppi servizi ed è suddiviso in un ampio salone con vetrata panoramica sul porticato di generose dimensioni e giardino, una cucina abitabile aperta, due camere, due bagni ed uno spazioso giardino. Ottimo investimento € 285.000,00 - Box doppio in larghezza ad € 40.000,00. L'immobile è dotato di pannelli fotovoltaici, pompa di calore, riscaldamento a pavimento, raffrescamento ad aria e ventilazione meccanica controllata con recupero di calore. Oscuranti tipo griesser automatizzate, Ampia scelta di pavimenti in grès porcellanato grandi formati e di altre finiture di livello comprese nel capitolato




