Valutazione immobiliare indipendente, accurata e gratuita
Capannone in vendita a Bernareggio a 2.630.000 € (cod.6323db4b)
Caasa non ha sufficienti informazioni per commentare il capannone in vendita a Bernareggio - 6323db4b.
Analisi immobiliare
I dati in posseso di Caasa per quest'immobile sono insufficienti, inaffidabili o contraddittori per proporre un'analisi attendibile.
Mercato immobiliare a Bernareggio
Per quanto riguarda più in generale il comune di Bernareggio, sono presenti al momento più di dieci annunci per
capannoni in vendita (meno del 5% dell'intera provincia)
e il maggior numero di annunci per questa tipologia sono relativi alla zona di Villanova.
Vedi altre informazioni direttamente su
Mercato-Immobiliare.info
NOVITÀ Il risultato che vedi dipende dai dati che siamo riusciti ad estrarre dall'annuncio: ottieni una stima più accuranta di questo immobile, inserendo dati più precisi.
N.B. L'Opinione di Caasa® è un servizio sperimentale realizzato tramite tecniche di Intelligenza Artificiale, fornito senza alcuna garanzia di correttezza e completezza. Leggi il disclaimer o segnalaci un problema.
IMMAGINI
IN SINTESI
PROPOSTO DA:
SOGIM
Via Margherita De Vizzi Viganò 93/95, Cinisello Balsamo (MI)
Verificata da Caasa®
DESCRIZIONE
di nuova costruzione con termocondizionamento di nuova costruzione
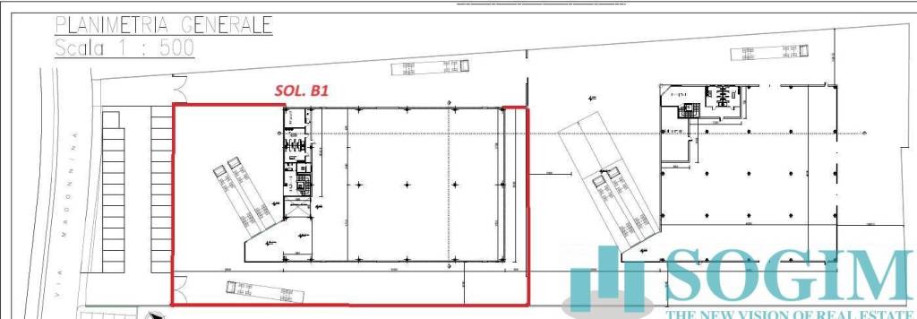
Capannone industriale in vendita a Bernareggio Capannone di mq 1660 oltre a mq 1900 di piazzale a Bernareggio Proponiamo in vendita nel Comune di Bernareggio capannone industriale di nuova costruzione posto su un'area complessiva di mq. 3.825. Il Capannone ha una superficie produttiva di mq. 1.660 oltre mq. 200 ad uso uffici di cui 50 ca. per spogliatoi e servizi per la zona produttiva. Completa questa splendida soluzione un grande piazzale di mq. 1.900 ove è possibile realizzare due baie di carico (costo da quantificare a parte). Il capannone è stato pensato e progettato per quelle aziende che oltre agli spazi produttivi hanno necessità di avere una grande area esterna utile per le attività di carico/scarico. Bilici e mezzi pesanti hanno tutto lo spazio necessario per effettuare in comodità e sicurezza tutte le manovre. Disponibile inoltre sul lotto, la possibilità di implementare l'area coperta di mq. 300. Il capannone viene consegnato con gli impianti al piede per quanto riguarda la zona produttiva e gli uffici open-space con pavimenti galleggianti, servizi ed impianto di riscaldamento/raffrescamento. Consegna immobile: un anno circa dalla sottoscrizione del preliminare di vendita

