Valutazione immobiliare indipendente, accurata e gratuita
L'Opinione di Caasa® per l'appartamento in vendita a Barlassina a 190.000 € (cod.6550bfcd)
Secondo Caasa, per l'appartamento in vendita a Barlassina, la richiesta di 190.000 € è significativamente svantaggiosa rispetto agli annunci simili.
Analisi immobiliare
L'appartamento, situato nella zona OMI B1, è proposto in vendita a
190.000 € per una
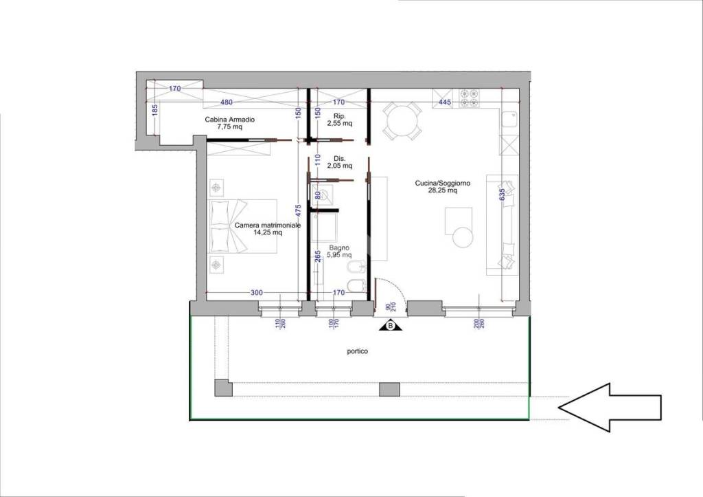
superficie commerciale di
60 m² e quindi ad un prezzo per metro quadrato pari a
3166 €/m²
.
Tale prezzo
è meno conveniente di quello stimato da Caasa per immobili in vendita simili per tipologia, caratteristiche, classe energetica e zona, che è compreso tra
2.578 €/m² e
2.763 €/m².
Presa in considerazione la posizione dell'appartamento si sono utilizzati in raffronto i valori medi nelle zone limitrofe . Ad affinare la stima ha contribuito anche la classe energetica (A+) oltre alla conoscenza dello stato dell'immobile (di recente ristrutturazione) e di alcune caratteristiche significative come la disponibilità di una cantina o il posto auto. Per queste ragioni i valori accettabili per l'offerta costituiscono un intervallo relativamente limitato.
Mercato immobiliare a Barlassina
Per quanto riguarda più in generale il comune di Barlassina, sono presenti al momento più di cento annunci per
appartamenti in vendita (meno dell'1% dell'intera provincia) .
Relativamente alla dinamica dei prezzi, possiamo dire che negli ultimi 6 mesi i prezzi medi in tutto il comune per appartamenti in vendita sono
in deciso aumento (+8,39%).
NOVITÀ Il risultato che vedi dipende dai dati che siamo riusciti ad estrarre dall'annuncio: ottieni una stima più accuranta di questo immobile, inserendo dati più precisi.
N.B. L'Opinione di Caasa® è un servizio sperimentale realizzato tramite tecniche di Intelligenza Artificiale, fornito senza alcuna garanzia di correttezza e completezza. Leggi il disclaimer o segnalaci un problema.
IMMAGINI
IN SINTESI
PROPOSTO DA:
Studio Delfino Sas
DESCRIZIONE
di recente ristrutturazione con posto auto con cantina di recente ristrutturazione con termocondizionamento con giardino
Appartamento completamente ristrutturato a Barlassina al piano terra, realizzato con tecnologie di ultima generazione per il massimo benessere e risparmio energetico: cappotto termico, ventilazione meccanica controllata, serramenti in triplo vetro con tapparelle elettriche, pompa di calore, fotovoltaico e riscaldamento a pavimento. L’ingresso indipendente dal vialetto privato conduce a un delizioso giardino esclusivo con portico, perfetto per colazioni all’aperto e momenti di relax. All’interno, ambienti moderni e funzionali: luminoso soggiorno con cucina a vista, disimpegno con ripostiglio, bagno finestrato con doccia e una camera matrimoniale con cabina armadio pensata per il massimo comfort. Completa la soluzione un posto auto interno assegnato



