Valutazione immobiliare indipendente, accurata e gratuita
Appartamento in vendita a Vaprio d'Adda a 290.000 € (cod.659dfc4a)
Caasa non ha sufficienti informazioni per commentare l'appartamento in vendita a Vaprio d'Adda - 659dfc4a.
Analisi immobiliare
I dati in posseso di Caasa per quest'immobile sono insufficienti, inaffidabili o contraddittori per proporre un'analisi attendibile.
Mercato immobiliare a Vaprio d'Adda
Per quanto riguarda più in generale il comune di Vaprio d'Adda, sono presenti al momento più di 150 annunci per
appartamenti in vendita (meno dell'1% dell'intera provincia) .
Possiamo inoltre considerare che in tutto il comune negli ultimi 6 mesi, i prezzi per appartamenti in vendita sono
in debole diminuzione (-1,36%).
NOVITÀ Il risultato che vedi dipende dai dati che siamo riusciti ad estrarre dall'annuncio: ottieni una stima più accuranta di questo immobile, inserendo dati più precisi.
N.B. L'Opinione di Caasa® è un servizio sperimentale realizzato tramite tecniche di Intelligenza Artificiale, fornito senza alcuna garanzia di correttezza e completezza. Leggi il disclaimer o segnalaci un problema.
IMMAGINI
IN SINTESI
DESCRIZIONE
di nuova costruzione con terrazza con termocondizionamento con balcone di nuova costruzione
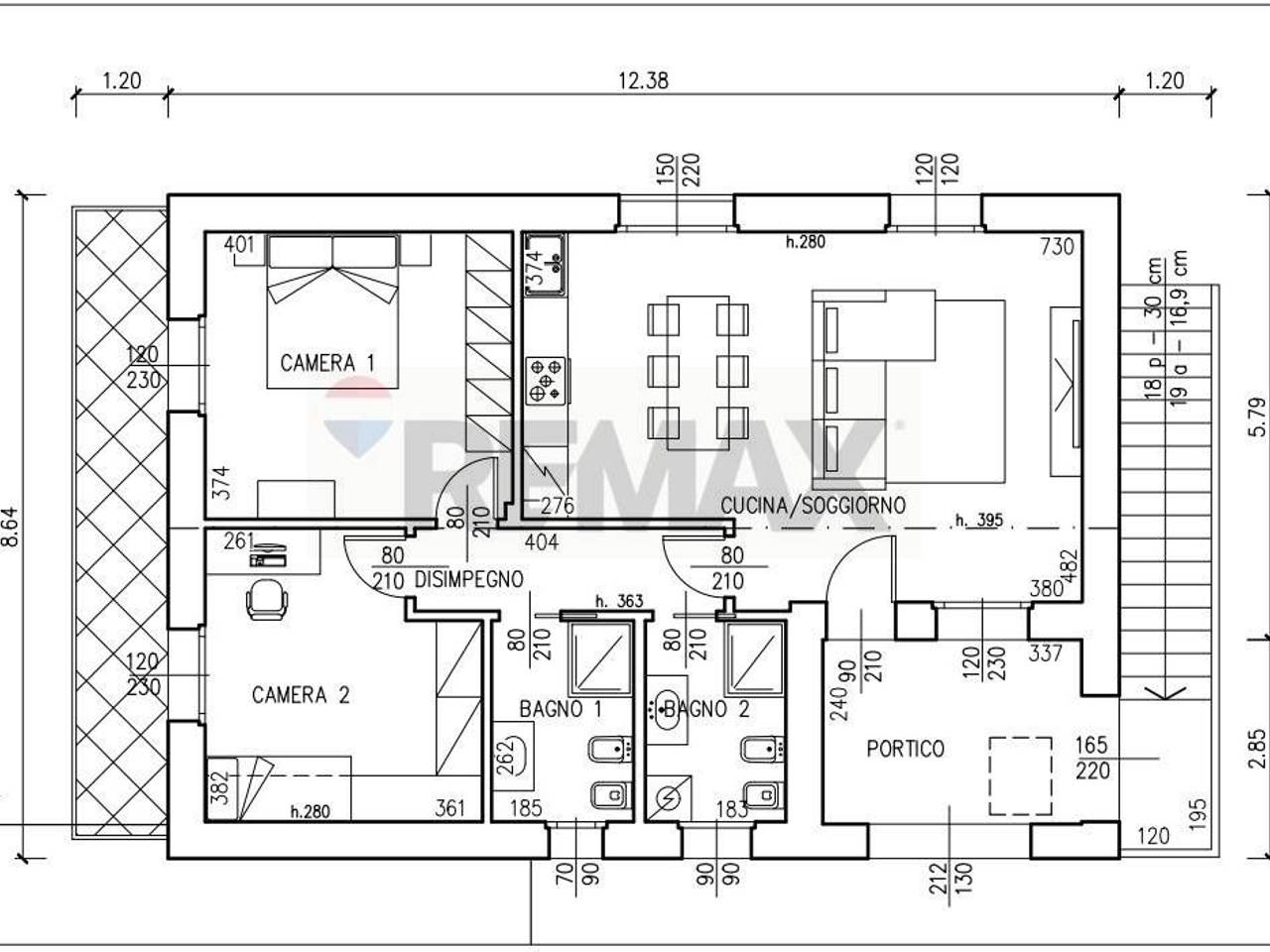
Trilocale ULTIMO Appartamento in villa NUOVA COSTRUZIONE Vaprio D'Adda proponiamo un Trilocale in villa nuova costruzione Il complesso è caratterizzato da soluzioni TECNOLOGICHE D'AVANGUARDIA, finalizzate a garantire CONFORT e FUNZIONALITA', nel risp […]
