Valutazione immobiliare indipendente, accurata e gratuita
Casa indipendente in vendita a Vanzago in zona Mantegazza a 204.750 € (cod.64f8833d)
Caasa non ha sufficienti informazioni per commentare la casa indipendente a Vanzago in zona Mantegazza - 64f8833d.
Analisi immobiliare
I dati in posseso di Caasa per quest'immobile sono insufficienti, inaffidabili o contraddittori per proporre un'analisi attendibile.
Mercato immobiliare a Vanzago
Per quanto riguarda più in generale il comune di Vanzago, sono presenti al momento più di cinquanta annunci per
case indipendenti in vendita (meno dell'1% dell'intera provincia)
e il maggior numero di annunci per questa tipologia sono relativi proprio alla zona di Mantegazza.
Per quanto riguarda la richiesta media in zona Mantegazza, dove sorge la casa indipendente, essa è pari a circa
1.865 €/m² per case indipendenti in vendita.
Relativamente alla dinamica dei prezzi, possiamo dire che negli ultimi 6 mesi i prezzi medi in tutto il comune per case indipendenti in vendita sono
in sostanziale aumento (+5,88%).
NOVITÀ Il risultato che vedi dipende dai dati che siamo riusciti ad estrarre dall'annuncio: ottieni una stima più accuranta di questo immobile, inserendo dati più precisi.
N.B. L'Opinione di Caasa® è un servizio sperimentale realizzato tramite tecniche di Intelligenza Artificiale, fornito senza alcuna garanzia di correttezza e completezza. Leggi il disclaimer o segnalaci un problema.
IMMAGINI
IN SINTESI
PROPOSTO DA:
STUDIO CANOVA immobili & crediti
DESCRIZIONE
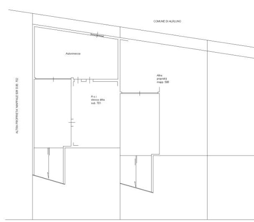
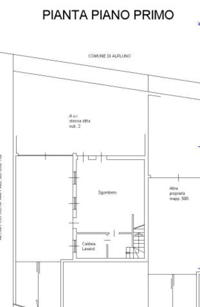
di recente costruzione con posto auto con cantina con giardino con balcone in asta giudiziaria di recente costruzione con angolo cottura
NUOVA PROPOSTA IMMOBILE DISPONIBILE Villino a Vanzago (MI) Via Botticelli. Unità abitativa che si sviluppa su due piani fuori terra più un piano seminterrato, tutti collegati da scala interna. Composto al piano seminterrato da due locali; al piano terra da camera, soggiorno e angolo cottura, oltre servizi, un terrazzo e un giardino. Al piano primo sottotetto da tre locali ripostiglio e due balconi, con area urbana a verde di pertinenza a piano terra, box auto posto al piano seminterrato composto attualmente da due locali, uno adibito a posto auto e una camera/studio, area urbana al piano terra composta da un appezzamento di terreno a verde comunicante con il terrazzo sul retro. Per te la possibilità di avere un preventivo per il mutuo a condizioni vantaggiose con i nostri partner. Ulteriori dettagli, foto degli interni, planimetrie e altre info, se disponibili, saranno consultabili previo appuntamento nella sede di MILANO con ALESSANDRO che inoltre ti informerà sulle possibilità di aggiudicarti questo affare. L'immobile pubblicato al momento è sottoposto a procedura di vendita legale; Gescom srl è specializzata nella ricerca e pianificazione di investimenti immobiliari secondo innovative strategie di acquisto. Contattaci subito potrai valutare assieme a un nostro tecnico canali distinti di acquisto dell’immobile, procedura di vendita diretta senza ricorrere all’asta (d.lgs. 149/2022) e ancora stralcio immobiliare. Le informazioni sopra riportate non sostituiscono l'avviso pubblicato dal Tribunale competente ne’ l'integrale gestione da parte del delegato designato. Il testo e le specifiche indicate nella presente pagina sono generate automaticamente attraverso l'utilizzo di software e/o da A. I., Gescom srl invita a verificare le formazioni e i materiali multimediali sui canali ufficiali, declinando fin d'ora ogni responsabilità su eventuali errori o incongruenze. Gescom Italia srl leader negli stralci immobiliari e nella consulenza tecnico legale, non si occupa di attività di intermediazione imm. di cui a[…]




