Valutazione immobiliare indipendente, accurata e gratuita
Ufficio in vendita a Trezzo sull'Adda a 145.000 € (cod.657d3d4a)
Caasa non ha sufficienti informazioni per commentare l'ufficio in vendita a Trezzo sull'Adda - 657d3d4a.
Analisi immobiliare
I dati in posseso di Caasa per quest'immobile sono insufficienti, inaffidabili o contraddittori per proporre un'analisi attendibile.
Mercato immobiliare a Trezzo sull'Adda
Per quanto riguarda più in generale il comune di Trezzo sull'Adda, sono presenti al momento più di trenta annunci per
uffici in vendita (meno dell'1% dell'intera provincia) .
Possiamo inoltre considerare che in tutto il comune negli ultimi 6 mesi, i prezzi per uffici in vendita sono
sostanzialmente stabili (+0,00%).
NOVITÀ Il risultato che vedi dipende dai dati che siamo riusciti ad estrarre dall'annuncio: ottieni una stima più accuranta di questo immobile, inserendo dati più precisi.
N.B. L'Opinione di Caasa® è un servizio sperimentale realizzato tramite tecniche di Intelligenza Artificiale, fornito senza alcuna garanzia di correttezza e completezza. Leggi il disclaimer o segnalaci un problema.
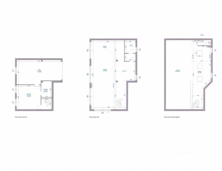
IMMAGINI
IN SINTESI
DESCRIZIONE
di recente ristrutturazione con posto auto di recente ristrutturazione
In Vendita: Loft Open-Space Unico a Cornate D'Adda Nelle immediate vicinanze del centro commerciale "Il Globo" e a soli 10 minuti di auto dal centro di Trezzo sull'Adda, proponiamo in vendita una straordinaria soluzione di loft open-space, attualment […]
