Valutazione immobiliare indipendente, accurata e gratuita
Appartamento in vendita a Trezzano Rosa a 294.000 € (cod.65319acb)
Caasa non ha sufficienti informazioni per commentare l'appartamento in vendita a Trezzano Rosa - 65319acb.
Analisi immobiliare
I dati in posseso di Caasa per quest'immobile sono insufficienti, inaffidabili o contraddittori per proporre un'analisi attendibile.
Mercato immobiliare a Trezzano Rosa
Per quanto riguarda più in generale il comune di Trezzano Rosa, sono presenti al momento circa cento annunci per
appartamenti in vendita (meno dell'1% dell'intera provincia) .
La dinamica dei prezzi in tutto il comune mostra che negli ultimi 6 mesi, i prezzi per appartamenti in vendita sono
in calo (-3,87%).
NOVITÀ Il risultato che vedi dipende dai dati che siamo riusciti ad estrarre dall'annuncio: ottieni una stima più accuranta di questo immobile, inserendo dati più precisi.
N.B. L'Opinione di Caasa® è un servizio sperimentale realizzato tramite tecniche di Intelligenza Artificiale, fornito senza alcuna garanzia di correttezza e completezza. Leggi il disclaimer o segnalaci un problema.
IMMAGINI
IN SINTESI
PROPOSTO DA:
UNICA CASA SRL
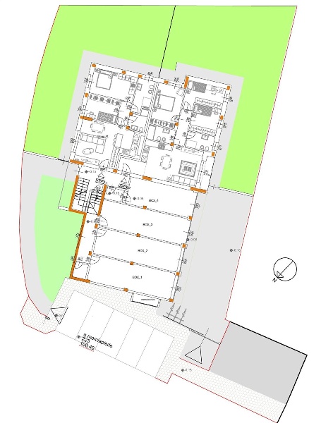
DESCRIZIONE
di nuova costruzione con giardino di nuova costruzione con angolo cottura
Lasciati conquistare dalla bellezza e dalla praticità del nuovo complesso “Residenza I Cedri” a Trezzano Rosa che sta sorgendo nella centralissima Via Fratelli Cervi. Scegli di vivere in un ambiente signorile, a pochi passi da tutti i principali servizi. La moderna realizzazione è costituita da una palazzina di soli 5 appartamenti. Impianto termico totalmente autonomo in pompa di calore, pannelli radianti a pavimento, predisposizione impianto di raffrescamento idronico, pannelli fotovoltaici, ventilazione meccanica controllata decentralizzata (puntuale) a singolo flusso alternato con recupero di calore a bassissimo consumo energetico ed altissima efficienza, per installazione in parete perimetrale. Comandate da un master, con recupero di calore e sensore umidità per soggiorno e camere, in cucina e bagni solo estrazione. Tapparelle in PVC o alluminio antigrandine motorizzate. Portoncino blindato classe 3 antieffrazione con ottima trasmittanza termica e abbattimento acustico. Box con porte di tipo sezionale motorizzata. Antenna e parabola satellitare di tipo digitale, impianto dati e fibra, sono solo alcune delle caratteristiche del nuovo intervento ad alta efficienza energetica. Il risparmio e l'indipendenza energetica rappresentano l'elemento centrale dello stabile che prevederà l'assegnazione ad ogni appartamento di un pannello fotovoltaico individuale come da Legge 10 (kW) da 3 a 5 kW e predisposizione per batteria di accumulo. L'impianto comprensivo di pannelli solari e inverter sarà collegato al quadro dell'appartamento per poter immettere tutta l'energia in eccesso tramite il contatore bidirezionale alla rete. Verrà predisposto un corrugato per una linea diretta al box dove sarà possibile installare una batteria di accumulo/stazione di ricarica automobili elettriche. In ciascuna unità immobiliare verrà realizzato impianto domotico a due moduli funzionanti, integrato con impianto elettrico e predisposto per la successiva installazione di eventuali moduli aggiuntivi. Saranno utilizzati impianti Smart H[…]

