Valutazione immobiliare indipendente, accurata e gratuita
Appartamento in vendita a Solaro a 60.300 € (cod.65570556)
Caasa non ha sufficienti informazioni per commentare l'appartamento in vendita a Solaro - 65570556.
Analisi immobiliare
I dati in posseso di Caasa per quest'immobile sono insufficienti, inaffidabili o contraddittori per proporre un'analisi attendibile.
Mercato immobiliare a Solaro
Per quanto riguarda più in generale il comune di Solaro, sono presenti al momento più di 200 annunci per
appartamenti in vendita (meno dell'1% dell'intera provincia)
e il maggior numero di annunci per questa tipologia sono relativi alla zona di Villaggio Brollo.
Possiamo inoltre considerare che in tutto il comune negli ultimi 6 mesi, i prezzi per appartamenti in vendita sono
in aumento (+3,57%).
NOVITÀ Il risultato che vedi dipende dai dati che siamo riusciti ad estrarre dall'annuncio: ottieni una stima più accuranta di questo immobile, inserendo dati più precisi.
N.B. L'Opinione di Caasa® è un servizio sperimentale realizzato tramite tecniche di Intelligenza Artificiale, fornito senza alcuna garanzia di correttezza e completezza. Leggi il disclaimer o segnalaci un problema.
IMMAGINI
IN SINTESI
PROPOSTO DA:
Geom. La Porta
DESCRIZIONE
di nuova costruzione con cantina di nuova costruzione in asta giudiziaria
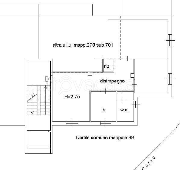
DATA ASTA 27/03/2026 SINCRONA Solaro Corso Europa, 60 appartamento di circa 90 mq, posto al piano rialzato di contesto residenziale. Ampio soggiorno Cucina separata Due camere da letto Bagno Ampio corridoio di disimpegno Ripostiglio La distribuzione […]
