Valutazione immobiliare indipendente, accurata e gratuita
Appartamento in vendita a San Donato Milanese a 237.000 € (cod.6592513a)
Caasa non ha sufficienti informazioni per commentare l'appartamento in vendita a San Donato Milanese - 6592513a.
Analisi immobiliare
I dati in posseso di Caasa per quest'immobile sono insufficienti, inaffidabili o contraddittori per proporre un'analisi attendibile.
Mercato immobiliare a San Donato Milanese
Per quanto riguarda più in generale la città di San Donato Milanese, sono presenti al momento oltre 500 annunci per
appartamenti in vendita (meno del 5% dell'intera provincia)
e il maggior numero di annunci per questa tipologia sono relativi alla zona di Poasco.
Possiamo inoltre considerare che in tutta la città negli ultimi 6 mesi, i prezzi per appartamenti in vendita sono
in sostanziale aumento (+5,45%).
NOVITÀ Il risultato che vedi dipende dai dati che siamo riusciti ad estrarre dall'annuncio: ottieni una stima più accuranta di questo immobile, inserendo dati più precisi.
N.B. L'Opinione di Caasa® è un servizio sperimentale realizzato tramite tecniche di Intelligenza Artificiale, fornito senza alcuna garanzia di correttezza e completezza. Leggi il disclaimer o segnalaci un problema.
IMMAGINI
IN SINTESI
PROPOSTO DA:
Affari All'asta
DESCRIZIONE
di nuova costruzione con cantina con balcone con terrazza con posto auto con ascensore con cucina abitabile di nuova costruzione con termocondizionamento in asta giudiziaria
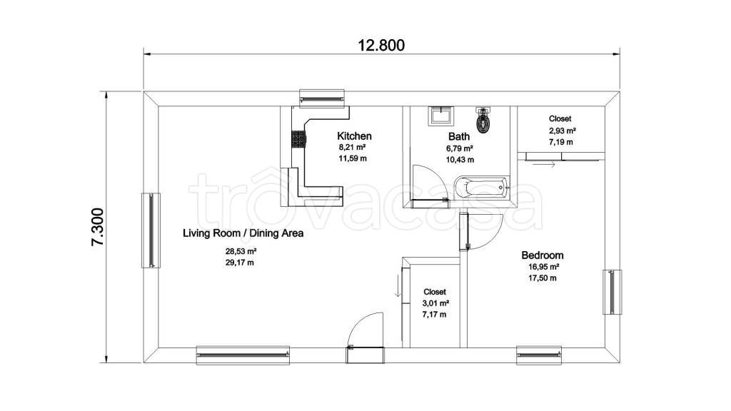
Asta appartamento a San Donato Milanese (MI) [SY611592] Via Enrico Mattei, 50, 20097 San Donato Milanese MI, Italia Intera piena proprietà di appartamento ad uso abitazione posto al primo piano, scala 2, composto da ingresso e disimpegno, soggiorno c […]
