Valutazione immobiliare indipendente, accurata e gratuita
Appartamento in vendita a Rozzano a 425.000 € (cod.6554ca99)
Caasa non ha sufficienti informazioni per commentare l'appartamento in vendita a Rozzano - 6554ca99.
Analisi immobiliare
I dati in posseso di Caasa per quest'immobile sono insufficienti, inaffidabili o contraddittori per proporre un'analisi attendibile.
Mercato immobiliare a Rozzano
Per quanto riguarda più in generale la città di Rozzano, sono presenti al momento oltre 500 annunci per
appartamenti in vendita (meno del 5% dell'intera provincia)
e il maggior numero di annunci per questa tipologia sono relativi alla zona di Valleambrosia.
Relativamente alla dinamica dei prezzi, possiamo dire che negli ultimi 6 mesi i prezzi medi in tutta la città per appartamenti in vendita sono
in leggero aumento (+3,13%).
NOVITÀ Il risultato che vedi dipende dai dati che siamo riusciti ad estrarre dall'annuncio: ottieni una stima più accuranta di questo immobile, inserendo dati più precisi.
N.B. L'Opinione di Caasa® è un servizio sperimentale realizzato tramite tecniche di Intelligenza Artificiale, fornito senza alcuna garanzia di correttezza e completezza. Leggi il disclaimer o segnalaci un problema.
IMMAGINI
IN SINTESI
PROPOSTO DA:
Geom. La Porta
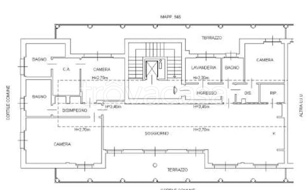
DESCRIZIONE
di nuova costruzione con cantina con posto auto di nuova costruzione in asta giudiziaria
DATA ASTA 26/03/2026 ASINCRONA Rozzano Corso Nilde Iotti 6 In contesto residenziale ben servito, ampio appartamento di generosa metratura posto al sesto piano, ideale per famiglie numerose o per chi è alla ricerca di spazi importanti e versatili. App […]
