Valutazione immobiliare indipendente, accurata e gratuita
L'Opinione di Caasa® per la casa indipendente in vendita a Pozzo d'Adda in zona Bettola a 570.000 € (cod.64fdf600)
Secondo Caasa, per la casa indipendente a Pozzo d'Adda in zona Bettola, la richiesta di 570.000 € è significativamente svantaggiosa rispetto agli annunci simili.
Analisi immobiliare
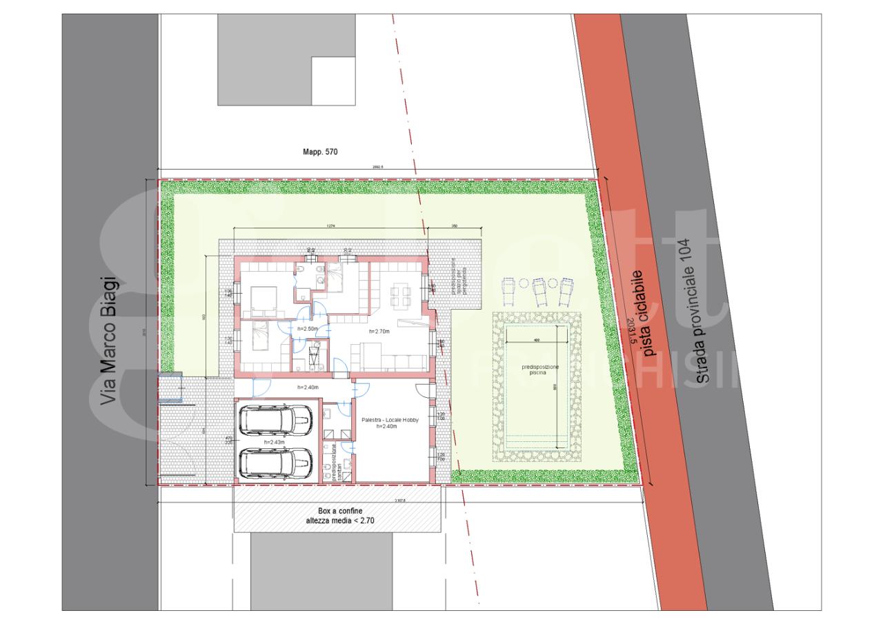
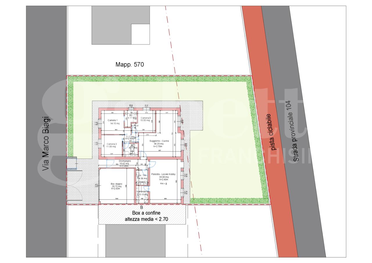
La casa indipendente, situata nella zona OMI E1, è proposta in vendita a
570.000 € per una
superficie commerciale di
200 m² e quindi ad un prezzo per metro quadrato pari a
2850 €/m²
.
Questo valore
è significativamente più alto di quello stimato da Caasa per immobili in vendita simili per tipologia e caratteristiche e localizzati nella stessa zona OMI, che è compreso tra
2.215 €/m² e
2.378 €/m².
Grazie alla conoscenza con buona approssimazione della localizzazione dell'immobile, è stato possibile utilizzare come raffronto i dati medi elaborati esattamente nella zona OMI di appertenenza (FRAZ. BETTOLA) per case indipendenti (da 1.780 €/m² a 2.640 €/m²) e per ville (da 1.870 €/m² a 2.435 €/m²). Anche se Caasa non è riuscita a determinare la classe energetica, ad affinare la stima ha contribuito anche lo stato dell'immobile (di nuova costruzione). Per queste considerazioni l'intervallo dei valori accettabili per l'offerta è relativamente limitato.
Mercato immobiliare a Pozzo d'Adda
Per quanto riguarda più in generale il comune di Pozzo d'Adda, sono presenti al momento più di 150 annunci per
case indipendenti in vendita (meno dell'1% dell'intera provincia)
e il maggior numero di annunci per questa tipologia sono relativi proprio alla zona di Bettola.
Per quanto riguarda la richiesta media in zona Bettola, dove sorge la casa indipendente, essa è pari a circa
2.125 €/m² per case indipendenti in vendita.
Per quanto riguarda la dinamica dei prezzi, negli ultimi 6 mesi i prezzi medi in tutto il comune per case indipendenti in vendita sono
in deciso aumento (+9,49%).
NOVITÀ Il risultato che vedi dipende dai dati che siamo riusciti ad estrarre dall'annuncio: ottieni una stima più accuranta di questo immobile, inserendo dati più precisi.
N.B. L'Opinione di Caasa® è un servizio sperimentale realizzato tramite tecniche di Intelligenza Artificiale, fornito senza alcuna garanzia di correttezza e completezza. Leggi il disclaimer o segnalaci un problema.
IMMAGINI
IN SINTESI
DESCRIZIONE
di nuova costruzione di nuova costruzione con giardino
Pozzo d'Adda Frazione Bettola Splendida villa singola di nuova costruzione situata nel comune di Pozzo d'Adda (MI), ideale per chi cerca spazi ampi e comfort. Con una superficie di 200 mq, la proprietà offre 3 locali e 2/3 bagni, perfetti per una fam […]
