Valutazione immobiliare indipendente, accurata e gratuita
Appartamento in vendita a Pioltello a 184.500 € (cod.6551a07d)
Caasa non ha sufficienti informazioni per commentare l'appartamento in vendita a Pioltello - 6551a07d.
Analisi immobiliare
I dati in posseso di Caasa per quest'immobile sono insufficienti, inaffidabili o contraddittori per proporre un'analisi attendibile.
Mercato immobiliare a Pioltello
Per quanto riguarda più in generale la città di Pioltello, sono presenti al momento oltre 500 annunci per
appartamenti in vendita (meno dell'1% dell'intera provincia)
e il maggior numero di annunci per questa tipologia sono relativi alla zona di Seggiano.
Relativamente alla dinamica dei prezzi, possiamo dire che negli ultimi 6 mesi i prezzi medi in tutta la città per appartamenti in vendita sono
in debole aumento (+1,35%).
NOVITÀ Il risultato che vedi dipende dai dati che siamo riusciti ad estrarre dall'annuncio: ottieni una stima più accuranta di questo immobile, inserendo dati più precisi.
N.B. L'Opinione di Caasa® è un servizio sperimentale realizzato tramite tecniche di Intelligenza Artificiale, fornito senza alcuna garanzia di correttezza e completezza. Leggi il disclaimer o segnalaci un problema.
IMMAGINI
IN SINTESI
PROPOSTO DA:
Melpum Casa
DESCRIZIONE
con cantina con balcone con terrazza in asta giudiziaria
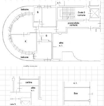
Pioltello, in zona centrale vendiamo appartamento al terzo piano composto da corridoio dingresso, soggiorno, cucina, due disimpegni, due camere da letto, due bagni, un balcone, una cantina ed un box di pertinenza al piano interrato. 42825 Per ulteriori informazioni contattare il seguente recapito telefonico 02/9552248 oppure scrivete a info@melpumcasa.it MELPUM CASA un punto di riferimento nel settore delle aste immobiliari. Il nostro team composto da esperti professionisti in grado di soddisfare le esigenze del cliente, garantendo un adeguato servizio di consulenza in ogni fase dellacquisto, fino allimmissione in possesso dellimmobile. Affidarsi a noi significa acquisire un immobile in modo consapevole e con la massima chiarezza su tempistiche, costi e procedure. MELPUM CASA offre ulteriori servizi dedicati al cliente quali: - Broker per ottenimento mutuo - Preventivi di spesa riguardanti ristrutturazioni e/o manutenzioni - Redazione di pratiche edilizie e catastali - Intermediazione su future vendite o locazioni - SC9590359


