Valutazione immobiliare indipendente, accurata e gratuita
Appartamento in vendita a Peschiera Borromeo a 204.050 € (cod.658a5deb)
Caasa non ha sufficienti informazioni per commentare l'appartamento in vendita a Peschiera Borromeo - 658a5deb.
Analisi immobiliare
I dati in posseso di Caasa per quest'immobile sono insufficienti, inaffidabili o contraddittori per proporre un'analisi attendibile.
Mercato immobiliare a Peschiera Borromeo
Per quanto riguarda più in generale la città di Peschiera Borromeo, sono presenti al momento più di 300 annunci per
appartamenti in vendita (meno dell'1% dell'intera provincia)
e il maggior numero di annunci per questa tipologia sono relativi alla zona di Bettola.
La dinamica dei prezzi in tutta la città mostra che negli ultimi 6 mesi, i prezzi per appartamenti in vendita sono
in aumento (+4,81%).
NOVITÀ Il risultato che vedi dipende dai dati che siamo riusciti ad estrarre dall'annuncio: ottieni una stima più accuranta di questo immobile, inserendo dati più precisi.
N.B. L'Opinione di Caasa® è un servizio sperimentale realizzato tramite tecniche di Intelligenza Artificiale, fornito senza alcuna garanzia di correttezza e completezza. Leggi il disclaimer o segnalaci un problema.
IMMAGINI
IN SINTESI
PROPOSTO DA:
Case all'Asta
DESCRIZIONE
di recente costruzione con posto auto con cantina in asta giudiziaria di recente costruzione con garage
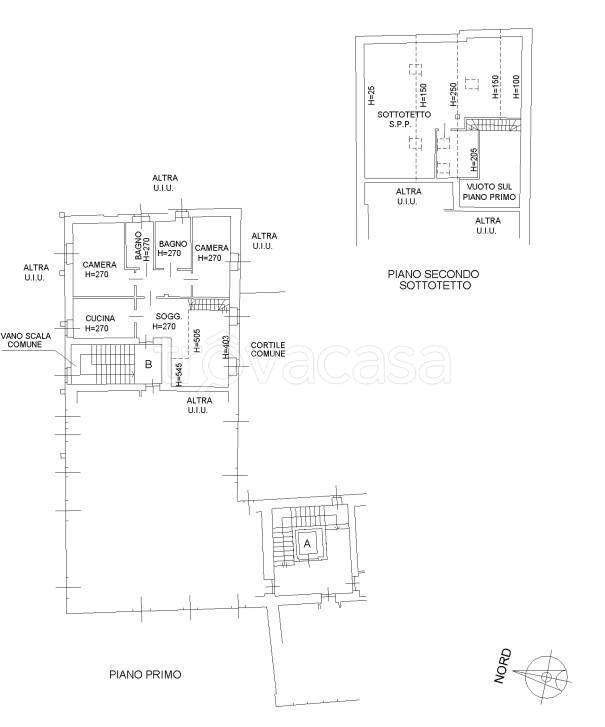
Quadrilocale con due bagni e garage Appartamento su due livelli con box auto. Piano primo: 3 locali, cucina e 2 bagni. Piano secondo: locale sottotetto uso ripostiglio. Superficie circa 167 mq, box auto di 15 mq. Nessun costo di iscrizione con Case a […]
