Valutazione immobiliare indipendente, accurata e gratuita
Casa indipendente in vendita a Paullo a 335.000 € (cod.65262150)
Caasa non ha sufficienti informazioni per commentare la casa indipendente in vendita a Paullo - 65262150.
Analisi immobiliare
I dati in posseso di Caasa per quest'immobile sono insufficienti, inaffidabili o contraddittori per proporre un'analisi attendibile.
Mercato immobiliare a Paullo
Per quanto riguarda più in generale il comune di Paullo, sono presenti al momento circa cento annunci per
case indipendenti in vendita (meno dell'1% dell'intera provincia)
e il maggior numero di annunci per questa tipologia sono relativi alla zona di Paullo Centro.
Per quanto riguarda la dinamica dei prezzi, negli ultimi 6 mesi i prezzi medi in tutto il comune per case indipendenti in vendita sono
sostanzialmente stabili (-0,21%).
NOVITÀ Il risultato che vedi dipende dai dati che siamo riusciti ad estrarre dall'annuncio: ottieni una stima più accuranta di questo immobile, inserendo dati più precisi.
N.B. L'Opinione di Caasa® è un servizio sperimentale realizzato tramite tecniche di Intelligenza Artificiale, fornito senza alcuna garanzia di correttezza e completezza. Leggi il disclaimer o segnalaci un problema.
IMMAGINI
IN SINTESI
PROPOSTO DA:
Agente Immobiliare
DESCRIZIONE
di recente ristrutturazione con posto auto con cucina abitabile con giardino di recente ristrutturazione con caminetto
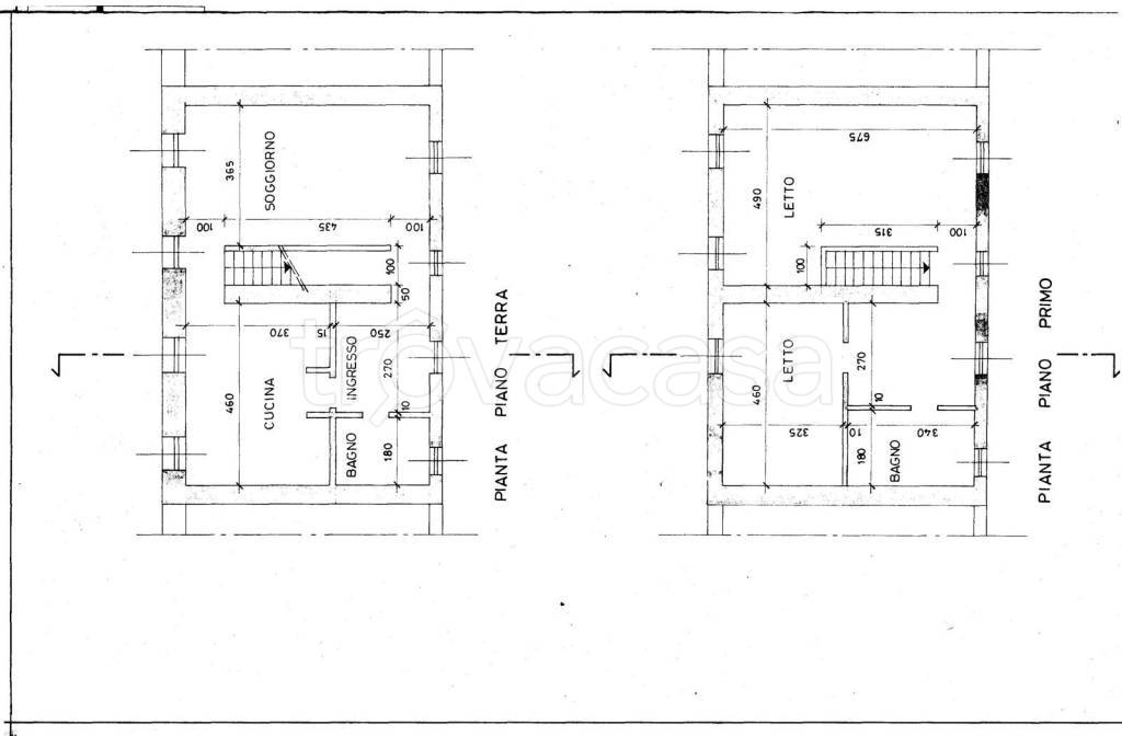
Immobiliare Triulzi, propone in vendita in un complesso di cascine storiche ristrutturate a abitazioni, una porzione di villino indipendente su due livelli, ristrutturato mantenendo e recuperando parte degli elementi originali e così composto: Piano terra: - ampio ingresso indipendente, - ampia cucina abitabile con elettrodomestici a induzione - bagno - grande soggiorno con camino - porzione giardino Piano Primo: - ampio disimpegno - bagno - tre camere da letto matrimoniali. -posto auto L'immobile proposto non necessita di ristrutturazioni importanti, possibilità di realizzare un Box doppio (non compreso nel prezzo) all'interno della cascina Bentivoglio A soli 21 minuti da Milano e a 5 minuti dal centro di Paullo è una posizione comoda per vivere nel silenzio a stretto contatto con la natura, per ottenere benessere psico-fisico e un migliore equilibrio tra vita professionale e privata


