Valutazione immobiliare indipendente, accurata e gratuita
L'Opinione di Caasa® per la casa indipendente in vendita a Parabiago a 499.000 € (cod.65819687)
Secondo Caasa, per la casa indipendente in vendita a Parabiago, la richiesta di 499.000 € è equilibrata rispetto agli annunci simili.
Analisi immobiliare
La casa indipendente, situata nella zona OMI D1, è proposta in vendita a
499.000 € per una
superficie commerciale di
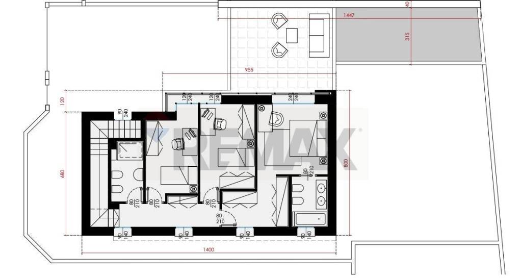
218 m² e quindi ad un prezzo per metro quadrato pari a
2288 €/m²
.
Tale valore
è molto vicino a quello stimato da Caasa per immobili in vendita simili per tipologia e caratteristiche, presenti nella stessa zona, che è compreso tra
2.285 €/m² e
2.485 €/m².
Vista la posizione della casa indipendente sono stati utilizzati come raffronto i valori medi nelle zone limitrofe . Caasa non è stata in grado di determinare la classe energetica, ma ad affinare la stima hanno contribuito però anche lo stato dell'immobile (di nuova costruzione) e la presenza di alcune caratteristiche significative come la disponibilità di una cantina o il garage. In virtù di queste considerazioni i valori possibili per l'offerta costituiscono un intervallo relativamente ampio.
Mercato immobiliare a Parabiago
Per quanto riguarda più in generale la città di Parabiago, sono presenti al momento più di 200 annunci per
case indipendenti in vendita (meno del 5% dell'intera provincia) .
La dinamica dei prezzi in tutta la città mostra che negli ultimi 6 mesi, i prezzi per case indipendenti in vendita sono
in sostanziale aumento (+7,04%).
NOVITÀ Il risultato che vedi dipende dai dati che siamo riusciti ad estrarre dall'annuncio: ottieni una stima più accuranta di questo immobile, inserendo dati più precisi.
N.B. L'Opinione di Caasa® è un servizio sperimentale realizzato tramite tecniche di Intelligenza Artificiale, fornito senza alcuna garanzia di correttezza e completezza. Leggi il disclaimer o segnalaci un problema.
IMMAGINI
IN SINTESI
DESCRIZIONE
di nuova costruzione con terrazza con posto auto con cantina con termocondizionamento con giardino di nuova costruzione con garage di recente costruzione
Proponiamo una elegante e moderna villa unifamiliare a Parabiago, situata in un complesso residenziale con 8 ville singole. -L'immobile, disposto su due livelli, ed è dotato di ogni comfort per garantire il massimo benessere. -Al piano terra ingresso sulla zona living dove si trovano il luminoso soggiorno con cucina a vista, il disimpegno e il bagno, dalla sala si accede attraverso una grande vetrata al giardino; -Al primo piano a cui si accede tramite una comoda scala, si trova la zona notte con una camera singola, una camera matrimoniale, un bagno e la grande camera padronale con cabina armadio e bagno en suite. -Gli ambienti sono resi ancora più accoglienti grazie all'impianto di riscaldamento a pavimento che permette di mantenere una temperatura ideale in ogni stagione. -La costruzione ha finiture di pregio e infissi in PVC con tripla camera, che garantiscono un'ottima coibentazione termica e acustica, è possibile personalizzare le finiture con scelta all'interno di un ampio capitolato. -Dalla zona giorno si accede alla grande cantina a piano terra che comunica direttemento con il box doppio in larghezza -Le dotazioni della villa comprendono : pannelli solari per la produzione di energia elettrica, batteria di accumulo, tapparelle rinforzate e motorizzate, impianto domotico di base con possibilità di sviluppo successivo, climatizzazione nella zona giorno e nelle tre camere, predisposizione antifurto. Classe energetica prevista alla consegna A4 CONSEGNA PREVISTA MARZO 2027 • fidejussione che garantisce il rimborso, in caso di crisi dell'impresa, di tutte le somme pagate o da pagare prima del trasferimento definitivo della proprietà; • polizza assicurativa di durata decennale (cd. decennale postuma) che garantisce il risarcimento dei danni materiali e diretti all'immobile; • La legge (D.Lgs n.14/2019) prevede l'obbligo di stipulare il contratto preliminare con l'intervento del notaio. Le immagini degli ambienti sono puramente esemplificative e non costituisconno vincolo contrattuale. RIFERIMENTO RIB 342[…]

