Valutazione immobiliare indipendente, accurata e gratuita
Casa indipendente in vendita a Parabiago a 515.000 € (cod.64f78784)
Caasa non ha sufficienti informazioni per commentare la casa indipendente in vendita a Parabiago - 64f78784.
	Analisi immobiliare
	
	I dati in posseso di Caasa per quest'immobile sono insufficienti, inaffidabili o contraddittori per proporre un'analisi attendibile.
	
	Mercato immobiliare a Parabiago
	
	Per quanto riguarda più in generale la città di Parabiago, sono presenti al momento più di 300 annunci per 
		case indipendenti in vendita (meno del 5% dell'intera provincia) .
	
	
	
	Per quanto riguarda la dinamica dei prezzi, negli ultimi 6 mesi i prezzi medi in tutta la città per case indipendenti in vendita sono 
		in aumento (+3,34%).
	
	
	
NOVITÀ Il risultato che vedi dipende dai dati che siamo riusciti ad estrarre dall'annuncio: ottieni una stima più accuranta di questo immobile, inserendo dati più precisi.
N.B. L'Opinione di Caasa® è un servizio sperimentale realizzato tramite tecniche di Intelligenza Artificiale, fornito senza alcuna garanzia di correttezza e completezza. Leggi il disclaimer o segnalaci un problema.
IMMAGINI
IN SINTESI
PROPOSTO DA:
ROYAL IMMOBILIARE di geom. Leo Pasquale
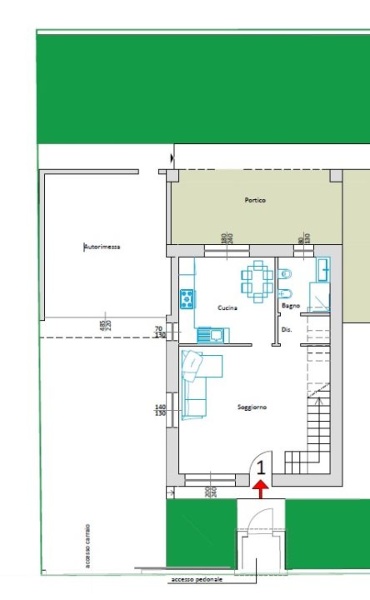
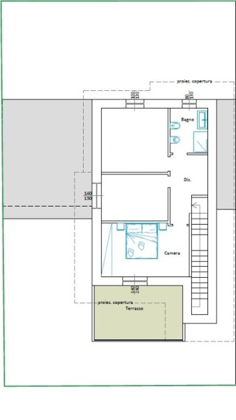
DESCRIZIONE
di nuova costruzione con terrazza con giardino con cucina abitabile di nuova costruzione
VILLE IRIS è una nuova realizzazione posizionata in una delle zone residenziali più belle e richieste di Parabiago identificata come Ravello-oltre ferrovia. L'intervento vede la realizzazione di sei ville singole, suddivise in due lotti da tre unità di varie metrature, tutte dallo stile moderno ed essenziale, indipendente una dalle altre. Le abitazioni saranno in dotate delle tecnologie costruttive di ultima generazione in tema di risparmio energetico. Ogni villa sarà disposta su due piani, terra e primo, con grandi giardini, porticati e terrazzi al piano primo, oltre box doppi. Ogni abitazione è da personalizzare nella scelte delle finiture quali pavimenti, rivestimenti e porte interne.\n\nVILLA 1- and euro; 515.000. Villa di 144 mq, Giardino di 165 mq, Portico di 20 mq e Terrazzo di 20 mq. Abitazione così suddivisa: piano terra di 66,50 mq con ingresso su ambia zona living, cucina abitabile o aperta a preferenza del cliente servita da bellissimo porticato di 20 mq, disimpegno, bagno; piano primo di 77,50 mq con camera matrimoniale servita da terrazzo, camera singola, camera doppia e bagno. Il giardino di 165 mq circonda i quattro lati della casa. Il box è doppio in larghezza. - Maggiori Dettagli: Porta blindata, Cucina Abitabile
 
                               
                               
                               
                               
                               
                               
                               
                               
                               
                              





