Valutazione immobiliare indipendente, accurata e gratuita
Appartamento in vendita a Paderno Dugnano a 99.595 € (cod.651ebead)
Caasa non ha sufficienti informazioni per commentare l'appartamento in vendita a Paderno Dugnano - 651ebead.
Analisi immobiliare
I dati in posseso di Caasa per quest'immobile sono insufficienti, inaffidabili o contraddittori per proporre un'analisi attendibile.
Mercato immobiliare a Paderno Dugnano
Per quanto riguarda più in generale la città di Paderno Dugnano, sono presenti al momento oltre 500 annunci per
appartamenti in vendita (meno del 5% dell'intera provincia)
e il maggior numero di annunci per questa tipologia sono relativi alla zona di Palazzolo Milanese.
Relativamente alla dinamica dei prezzi, possiamo dire che negli ultimi 6 mesi i prezzi medi in tutta la città per appartamenti in vendita sono
in forte aumento (+13,90%).
NOVITÀ Il risultato che vedi dipende dai dati che siamo riusciti ad estrarre dall'annuncio: ottieni una stima più accuranta di questo immobile, inserendo dati più precisi.
N.B. L'Opinione di Caasa® è un servizio sperimentale realizzato tramite tecniche di Intelligenza Artificiale, fornito senza alcuna garanzia di correttezza e completezza. Leggi il disclaimer o segnalaci un problema.
IMMAGINI
IN SINTESI
PROPOSTO DA:
AsteGlobal
DESCRIZIONE
di nuova costruzione con posto auto con cantina con giardino con cucina abitabile di nuova costruzione in asta giudiziaria
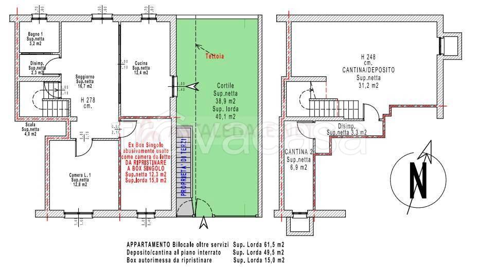
Via Sant'Ambrogio n.10 - Paderno Dugnano (MI) Appartamento bilocale di 76mq suddiviso su due livelli, sito al piano terra, così composto: ingresso indipendente su giardino di proprietà, cucina abitabile, soggiorno, bagno e camera da letto. Tramite sc […]
